
Eigenheimwohnen EWG GmbH - Town & Country Lizenz-Partner
Frau Mandy Pohl
033 ···
Nr. anzeigenPreise & Kosten
Provision für Käufer
provisionsfrei
Lage
Dieses 495 qm Grundstück in Werder (Havel) zeichnet sich durch eine sehr zentrale Lage aus. Die Altstadt und die Insel Werder sind fußläufig zu erreichen. Auch alle wichtigen Versorgungseinrichtungen, Ärzte, Supermärkte, Kitas und Schulen sind zu Fuß zu erreichen.
Werder (Havel) bietet daher ideale Voraussetzungen für...
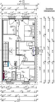
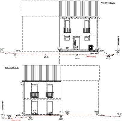
Das Haus
Kategorie
Doppelhaushälfte
Baujahr
2026
Energie & Heizung
Warum sehe ich diese Anzeige? – Du siehst diese Anzeige basierend auf Ihrer Navigation auf unserer Website und den Suchkriterien, die du verwendet hast.
Energieausweistyp
Bedarfsausweis
Gebäudetyp
Wohngebäude
Baujahr laut Energieausweis
2026
Wesentliche Energieträger
Wärmepumpe
Effizienzklasse
A+
Endenergiebedarf
28,00 kWh/(m²·a)
Weitere Energiedaten
Energieträger
Elektro
Heizungsart
Fußbodenheizung, Luft-/Wasser-Wärmepumpe
Details
Objektbeschreibung
Moderne Doppelhaushälfte - Neubau vom Bauträger, provisionsfrei, bezugsfertig, 495 qm Grundstück mitten in Werder (Havel).
In attraktiver, zentraler Lage von Werder (Havel) entsteht diese hochwertige Doppelhaushälfte als Neubauprojekt eines erfahrenen Bauträgers.
Der moderne Grundriss ist offen gestaltet. Über...
Ausstattung
Im Hauspreis sind enthalten:
- massiv gebaut, energetisch sicher (Effizienzklasse A+)
- Wärmepumpe
- Fußbodenheizung
- Holzparkettboden
- bodengleiche Dusche
- elektrische Rollläden
- Vorrüstung E-Auto und Photovoltaik
- mit Malervlies gestrichene Wände
- Terrasse
- 2 Stellplätze
Zum...
Anbieter der Immobilie
Eigenheimwohnen EWG GmbH - Town & Country Lizenz-Partner
Zossener Damm 13, 15827 Blankenfelde-Mahlow
Online-ID: 2nt7e58
Referenznummer: MP-DPAura125_261993011498
Finde Angebote wie dieses
Hier geht es zu unserem Impressum, den Allgemeinen Geschäftsbedingungen, den Hinweisen zum Datenschutz und nutzungsbasierter Online-Werbung.