

ORANGE Immobilienagentur
Herr Mathias Schreiner
004 ···
Nr. anzeigenPreise & Kosten
Provision für Käufer
provisionsfrei
Lage
92334 Berching - Leben, wo andere Urlaub machen
Willkommen in einer Stadt, die Geschichte atmet und gleichzeitig Raum für Ihre Zukunft bietet. Berching begeistert mit seinem vollständig erhaltenen historischen Stadtkern und der imposanten Stadtmauer - ein Wohnort mit Charakter, Charme und echter...
Die Wohnung
Bezug
Herbst 2027
Wohnanlage
Energie & Heizung
Warum sehe ich diese Anzeige? – Du siehst diese Anzeige basierend auf Ihrer Navigation auf unserer Website und den Suchkriterien, die du verwendet hast.
Energieausweistyp
Bedarfsausweis
Gebäudetyp
Wohngebäude
Baujahr laut Energieausweis
2026
Gültigkeit
bis 24.02.2036
Effizienzklasse
A+
Endenergiebedarf
25,00 kWh/(m²·a)
Weitere Energiedaten
Heizungsart
Fußbodenheizung
Details
Objektbeschreibung
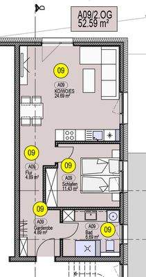
2-Zimmer-Wohnung - 2. Obergeschoss mit Aufzug
52,59 m² - durchdachter Grundriss mit klarer Struktur
Kompakt in der Fläche. Großzügig im Wohngefühl. Wirtschaftlich in der Vermietung.
Die Wohnung A09 im 2. Obergeschoss überzeugt mit einem hervorragend geschnittenen Grundriss auf 52,59 m² Wohnfläche. Hier...
Ausstattung
Highlights auf einen Blick:
* KfW-40 Neubau im QNG-Standard
* 5 % degressive AfA + 5 % Sonder-AfA
* Energieeffiziente Luft-Wärmepumpe
* Fußbodenheizung in allen Wohnräumen
* Dreifachverglaste Wärmeschutzfenster
* Wärmedämmverbundsystem
* Elektrische Rollläden / Jalousien
* Rollstuhlgerechter...
Weitere Informationen
Sonstiges
Gerne sind wir für weitere Fragen und Informationen unter Tel.: 09181 - 883 004 2 erreichbar.
Alle Angaben stammen vom Eigentümer. Der Makler übernimmt hierfür keine Haftung.
Anfragen über die Immobilienportale werden nur mit vollständiger Adresse und Telefonnummer bearbeitet. Jeder ORANGE...
Anbieter der Immobilie
ORANGE Immobilienagentur
Kumpfmühler Str. 59, 93051 Regensburg

Online-ID: 2nt495q
Referenznummer: 524-KW-B.A09
Finde Angebote wie dieses
Hier geht es zu unserem Impressum, den Allgemeinen Geschäftsbedingungen, den Hinweisen zum Datenschutz und nutzungsbasierter Online-Werbung.