

Sparkasse Chemnitz, Immobilien, in Vertretung der LBS IMMOBILIEN GMBH Nordost
Frau Salome Frank
037 ···
Nr. anzeigenPreise & Kosten
Provision für Käufer
provisionsfrei
Lage
Herzlich willkommen im Stadtteil Altendorf! Dieser liegt westlich des Chemnitz Stadtzentrums. Angrenzende Stadtteile sind Borna-Heinersdorf, Schloßchemnitz, Kaßberg, Schönau und Rottluff. In Altendorf befinden sich neben dem "REHA-Zentrum für Blinde und Sehbehinderte", der "Frauenklinik" und dem Klinikum Chemnitz auch eine...
Das Haus
Kategorie
Doppelhaushälfte
Baujahr
1912
Energie & Heizung
Warum sehe ich diese Anzeige? – Du siehst diese Anzeige basierend auf Ihrer Navigation auf unserer Website und den Suchkriterien, die du verwendet hast.
Energieausweistyp
Verbrauchsausweis
Gebäudetyp
Wohngebäude
Baujahr laut Energieausweis
1912
Wesentliche Energieträger
Fernwärme
Gültigkeit
04.01.2026 bis 03.01.2036
Effizienzklasse
D
Endenergieverbrauch
127,20 kWh/(m²·a) - Warmwasser enthalten
Weitere Energiedaten
Haustyp
Massivhaus
Energieträger
Fernwärme
Heizungsart
Zentralheizung
Details
Objektbeschreibung
Diese Doppelhaushälfte ist Ihre Gelegenheit in beliebter Lage Ihren neuen Lebensmittelpunkt aufzubauen. Durch die ruhige Umgebung des Wohngebietes können Sie hier gut zur Ruhe kommen. Das gepflegte Objekt bietet sich für eine kleine Familie oder Paare an, die endlich ins eigene Haus ziehen möchten.
Über das Erd- und...
Ausstattung
Individuelle Ausstattungsmerkmale:
- Außenjalousien
. massiv gebaute Doppelhaushälfte
. Baujahr ca. 1912
. ca. 94,55 m² Wohnfläche
. ca. 358 m² Grundstücksfläche
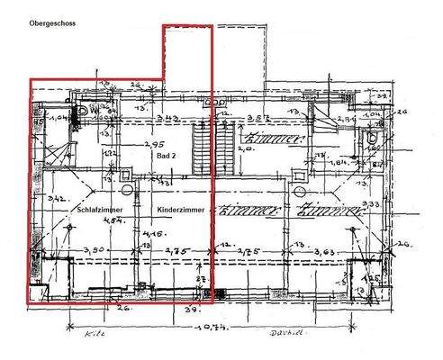
. Bad mit Dusche, Waschmaschinenanschluss, WC und Waschbecken im Erdgeschoss 2001 erneuert
. zweites Bad im OG mit Wanne und...
Weitere Informationen
Sonstiges
Alle Angaben haben wir vom Auftraggeber erhalten. Für deren Richtigkeit können wir keine Gewähr übernehmen. Einen Zwischenverkauf behält sich der Auftraggeber/Verkäufer ausdrücklich vor.
Wir bitten um Verständnis, dass wir nur vollständige, schriftliche Anfragen (E-Mail, Fax, Brief) mit Namen, Anschrift...
Anbieter der Immobilie
Sparkasse Chemnitz, Immobilien, in Vertretung der LBS IMMOBILIEN GMBH Nordost
Bahnhofstraße 51, 09111 Chemnitz

Online-ID: 2nt2v57
Referenznummer: 170-2902
Finde Angebote wie dieses
Hier geht es zu unserem Impressum, den Allgemeinen Geschäftsbedingungen, den Hinweisen zum Datenschutz und nutzungsbasierter Online-Werbung.