

Dous Immobilien GmbH
Herr Friedrich Blanck
004 ···
Nr. anzeigenPreise & Kosten
Provision für Käufer
3,57 % inkl. MwSt.
Lage
Lüneburg mit seinen beinahe 80 000 Einwohnern überzeugt vor allem durch eine sehr hohe Lebensqualität und sein wunderschönes historisches Stadtbild. Deshalb haben in den vergangenen Jahren auch immer mehr Pendler die "kleine" Hansestadt als Wohnort für sich entdeckt. Zudem ist die große Hanse-Schwester Hamburg mit...
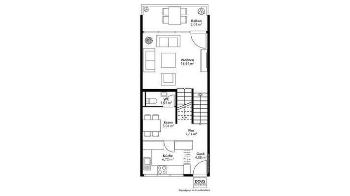
Die Wohnung
Wohnanlage
Energie & Heizung
Warum sehe ich diese Anzeige? – Du siehst diese Anzeige basierend auf Ihrer Navigation auf unserer Website und den Suchkriterien, die du verwendet hast.
Energieausweistyp
Bedarfsausweis
Gebäudetyp
Wohngebäude
Baujahr laut Energieausweis
1972
Wesentliche Energieträger
GAS
Gültigkeit
bis 24.01.2034
Effizienzklasse
D
Endenergiebedarf
105,00 kWh/(m²·a)
Weitere Energiedaten
Energieträger
Gas
Heizungsart
Zentralheizung
Details
Objektbeschreibung
Diese großzügige 3-Zimmer-Wohnung eignet sich hervorragend zur Eigennutzung für Paare, Singles oder auch als Anlageobjekt zur Vermietung. Die renovierungsbedürftige Wohnung befindet sich im ersten und zweiten Obergeschoss eines Mehrfamilienhauses und erstreckt sich über drei Ebenen, so genanntes Split-Level wohnen. Eine...
Anbieter der Immobilie

Online-ID: 2nt2a5w
Referenznummer: W-K-LG-25-072-P
Finde Angebote wie dieses
Hier geht es zu unserem Impressum, den Allgemeinen Geschäftsbedingungen, den Hinweisen zum Datenschutz und nutzungsbasierter Online-Werbung.