
DH Immobilien GmbH
Kontaktiere den Anbieter schriftlich, es ist keine Telefonnummer hinterlegt.
Preise & Kosten
Provision für Käufer
3,57 % inkl. gesetzl. MwSt.
Lage
OBJEKTLAGE:
Das Objekt befindet sich in einem ruhigen Wohngebiet in Innenstadtrandlage in Müritznähe. Bis zum Volksbad- einem beliebten Badestrand sind es nur ca. 350 m.
ORT & UMGEBUNG:
Waren (Müritz) befindet sich im Landkreis Mecklenburgische Seenplatte im Bundesland Mecklenburg-Vorpommern (Deutschland)...
Das Haus
Kategorie
Einfamilienhaus
Baujahr
2016
Bezug
nach Vereinbarung
Energie & Heizung
Warum sehe ich diese Anzeige? – Du siehst diese Anzeige basierend auf Ihrer Navigation auf unserer Website und den Suchkriterien, die du verwendet hast.
Energieausweistyp
Bedarfsausweis
Gebäudetyp
Wohngebäude
Wesentliche Energieträger
PELLET
Gültigkeit
bis 05.07.2035
Effizienzklasse
D
Endenergiebedarf
116,70 kWh/(m²·a)
Details
Objektbeschreibung
+++ Urlaubshinweis +++
In der Zeit vom 30. März bis zum 2. April 2026 legt unsere Geschäftsstelle eine kleine Osterpause ein! Ab Dienstag, den 7. April 2026, sind wir dann wieder wie gewohnt für Sie da und erreichbar. Sonnige Ostertage wünscht Ihr Team der DH Immobilien GmbH
Die exklusive und in hochwertiger...
Ausstattung
AUSSTATTUNG:
Dach:
- Flachdächer mit begrünungstauglicher Oberfläche
- Dachkästen, Schornstein sowie das beeindruckende, gewölbte Dach des Treppenaufganges sind mit langlebigem vorgewitterten Zinkstehfalz versehen -> Hier hat der Dachklempner in solider Handarbeit noch ganze Arbeit geleistet
Mauerwerk und...
Weitere Informationen
Stichworte
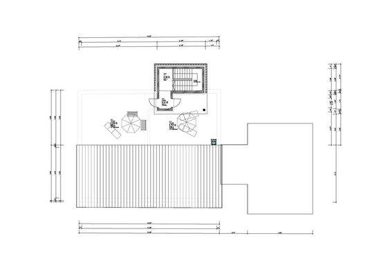
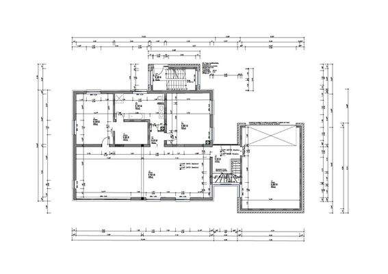
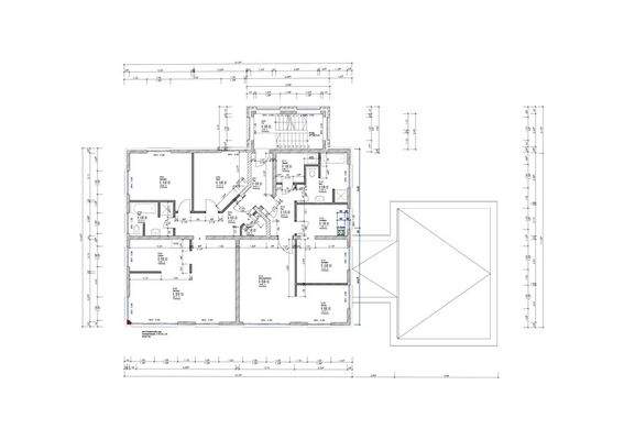
Nutzfläche: 192,00 m², Anzahl der Schlafzimmer: 6, Anzahl der Badezimmer: 3, Kellerfläche: 68,00 m², Bundesland: Mecklenburg-Vorpommern
Anbieter der Immobilie
DH Immobilien GmbH
Müritzstraße 7, 17192 Waren
Kontaktiere den Anbieter schriftlich, es ist keine Telefonnummer hinterlegt.
Online-ID: 2nsyk5v
Referenznummer: 0977
Finde Angebote wie dieses
Hier geht es zu unserem Impressum, den Allgemeinen Geschäftsbedingungen, den Hinweisen zum Datenschutz und nutzungsbasierter Online-Werbung.