
Deutsche Bank Immobilien GmbH
Frau Ramona Bendix
039 ···
Nr. anzeigenPreise & Kosten
Provision für Käufer
3,57 % inkl. MwSt.
Lage
Bad Suderode liegt an der Nordseite des Harzes. Die Calciumsolequelle sowie das milde Klima bilden ein gelungenes Gesundheits- und Erholungsangebot. Die historische Selketalbahn lädt zu erlebnisreichen Ausflügen im unmittelbar in der Nähe liegenden Harz ein. Sie bildet außerdem die ideale Verbindung zwischen dem 7km...
Gastronomie/Hotel
Kategorie
Hotel
Baujahr
1893
Energie & Heizung
Warum sehe ich diese Anzeige? – Du siehst diese Anzeige basierend auf Ihrer Navigation auf unserer Website und den Suchkriterien, die du verwendet hast.
Energieausweistyp
Verbrauchsausweis
Gebäudetyp
Wohngebäude
Baujahr laut Energieausweis
1893
Wesentliche Energieträger
Gas
Gültigkeit
16.03.2022 bis 16.03.2032
Effizienzklasse
D
Endenergieverbrauch
101,60 kWh/(m²·a) - Warmwasser enthalten
Weitere Energiedaten
Energieträger
Gas
Heizungsart
Zentralheizung
Details
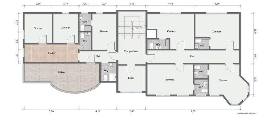
Objektbeschreibung
Das ehemalige Kloster aus dem Jahr 1893 wurde 2012 umfassend restauriert und sowohl innen als auch außen liebevoll renoviert. Seither erstrahlt das eindrucksvolle Gebäude wieder in seinem historischen Glanz. Bis 2024 wurde das Haus fortlaufend gepflegt und modernisiert.
Das Haus Felsengrund blickt auf eine bewegte...
Ausstattung
Das Wichtigste kurz und knapp:
-Brandschutz neu 2020
-Fenster Kunststoff
-Dach 2013
-große Küche (Restaurantbetrieb)
-Wellnessbereich mit Sauna
-Heizung Gas
-Badezimmer teilweise neu 2011
-alle Bäder sind mit Waschtisch, WC und Dusche ausgestattet
-Brunnen vorhanden...
Weitere Informationen
Sonstiges
Rechtlicher Hinweis auf den Urheber des Exposés
Ramona Bendix
Selbstständige Immobilienberaterin
Hoher Weg 12b 38820 Halberstadt
E-Mail: ramona.bendix@db.com
Telefon: 03941 6248739
Aufsichtsbehörde: Stadt Halberstadt - Gewerbe
Internet: https://www.halberstadt.de
Anschrift: Domplatz 49...
Anbieter der Immobilie
Deutsche Bank Immobilien GmbH
Breiter Weg 16, 38820 Halberstadt
Online-ID: 2nsy55d
Referenznummer: 43150106-119943
Finde Angebote wie dieses
Hier geht es zu unserem Impressum, den Allgemeinen Geschäftsbedingungen, den Hinweisen zum Datenschutz und nutzungsbasierter Online-Werbung.