
WBG "Glück Auf" Gera eG
Herr/Frau Vermietungs- und Mitgliederservice
036 ···
Nr. anzeigenPreise & Kosten
Kaution
1.386,00
Warum sehe ich diese Anzeige? – Du siehst diese Anzeige basierend auf Ihrer Navigation auf unserer Website und den Suchkriterien, die du verwendet hast.
Lage
Architektonisch und auch durch die neu gestalteten Außenanlagen entsteht ein modernes und attraktives Wohnensemble. Hervorragend sind die Lage und die Einbindung in den umgebenden öffentlichen Raum. Alle wichtigen infrastrukturellen Angebote werden vereint mit der Nähe zur Natur und dem Wohnen im Grünen.
Wohnplus
...
Die Wohnung
Wohnungslage
2. Geschoss
Bezug
01.10.2026
Wohnanlage
Energie & Heizung
Warum sehe ich diese Anzeige? – Du siehst diese Anzeige basierend auf Ihrer Navigation auf unserer Website und den Suchkriterien, die du verwendet hast.
Weitere Energiedaten
Energieträger
Gas
Heizungsart
Zentralheizung
Details
Objektbeschreibung
Alle Wohnungen erhalten eine hochwertige Ausstattung. Ausgewählte Materialen und Oberflächen sowie modernes Design schaffen eine wohnliche Atmosphäre. Lichtdurchflutete Wohnungen, viel Komfort und eine wunderschön gestaltete Außenanlage, mit ausreichend PKW-Stellplätzen bieten den künftigen Bewohnern ein ideales Umfeld für...
Ausstattung
Wohnen im Denkmal - wir sanieren einen wunderschönen Altbau für Sie!
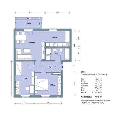
Diese 3-Raum-Wohnung entsteht im 2. Obergeschoss des Wohnhauses. Im großen Bad werden eine bodengleichen Dusche, eine Badewanne und moderne großformatige Fliesen eingebaut. Vom offen gestalteten Wohn- und Kochbereich gelangen Sie auf den großen Balkon....
Weitere Informationen
Stichworte
Anzahl Balkone: 1, Wohnungsnr.: W3.2
Dokumente
Anbieter der Immobilie
Online-ID: 2nsw25d
Referenznummer: W3.2
Finde Angebote wie dieses
Hier geht es zu unserem Impressum, den Allgemeinen Geschäftsbedingungen, den Hinweisen zum Datenschutz und nutzungsbasierter Online-Werbung.