
Adams & Heyder Immobilienmakler GmbH
Herr Stephan Adams
056 ···
Nr. anzeigenPreise & Kosten
Provision für Käufer
3,57% inkl. MwSt.
3,57% Käuferprovision inkl. MwSt., verdient und fällig mit Beurkundung des notariellen Kaufvertrages.
Lage
Die Lage verbindet zum einen das schöne Wohngebiet mit einer perfekten Infrastruktur:
- Kindergarten ca. 400 Meter entfernt + Grundschule ca. 1,5km
- Edeka 200 Meter
- Apotheke 400 Meter
- Ärzte im MVZ Baunatal 600 Meter
Gleichzeitig sind die öffentlichen Verkehrsmittel in direkter Nähe (150Meter) und das...
Das Haus
Kategorie
Mehrfamilienhaus
Baujahr
1980
Bezug
nach Absprache
Energie & Heizung
Warum sehe ich diese Anzeige? – Du siehst diese Anzeige basierend auf Ihrer Navigation auf unserer Website und den Suchkriterien, die du verwendet hast.
Energieausweistyp
Verbrauchsausweis
Gebäudetyp
Wohngebäude
Wesentliche Energieträger
Gas
Gültigkeit
seit 26.10.2025
Effizienzklasse
D
Endenergieverbrauch
126,40 kWh/(m²·a)
Weitere Energiedaten
Energieträger
Gas
Heizungsart
offener Kamin, Zentralheizung
Details
Objektbeschreibung
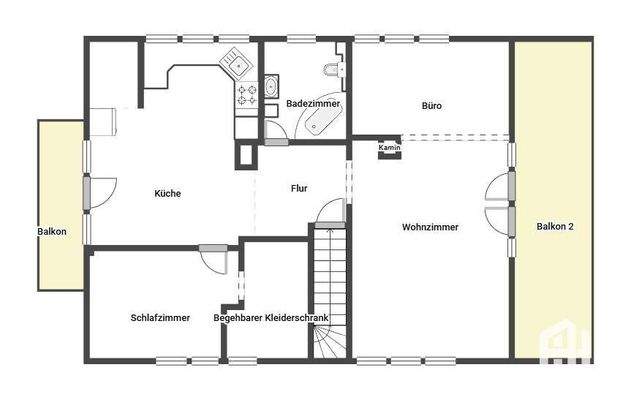
Dieses gepflegte 1-2 Familienhaus mit großem Garten bietet Ihnen vielseitige Nutzungsmöglichkeiten - vom großzügigen Einfamilienhaus bis zum Mehrgenerationenwohnen.
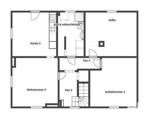
Ein echtes Highlight ist die Dachgeschosswohnung: sehr offen gestaltet, lichtdurchflutet und mit zwei großen Balkonen versehen. Bei Bedarf lässt sich der...
Ausstattung
Im Erdgeschoss finden Sie neben 2 Schlafzimmern das offen zur Küche gestaltete Wohnzimmer, in dem ein hochwertiger Holzofen eine behagliche Atmosphäre schafft. Das Badezimmer und ein separates Gäste-WC runden diese Etage ab.
Vor der Küche befindet sich der überdachte Balkon, auf dem Sie im Sommer auch bei einem...
Preisinformation
3 Garagenstellplätze
Weitere Informationen
Sonstiges
Die von uns erhaltenen Objektinformationen stammen vom Verkäufer. Eine Haftung für die Richtigkeit und Vollständigkeit der Angaben übernehmen wir nicht, da es unseren Kunden obliegt, die Angaben auf Richtigkeit zu prüfen.
Haben wir Ihre Begeisterung für diese moderne & geschmackvolle Immobilie in...
Anbieter der Immobilie
Adams & Heyder Immobilienmakler GmbH
Langenhofsweg 4a, 34134 Kassel
Online-ID: 2nsuv5r
Referenznummer: AH-241
Finde Angebote wie dieses
Hier geht es zu unserem Impressum, den Allgemeinen Geschäftsbedingungen, den Hinweisen zum Datenschutz und nutzungsbasierter Online-Werbung.