

Martens & Kühl GmbH
Herr Felix Kühl
041 ···
Nr. anzeigenPreise & Kosten
Kaution
2.100,00
Provision für Mieter
2,38 Nettomonatsmieten inkl. Mehrwertsteuer, zahlbar durch den Mieter
Warum sehe ich diese Anzeige? – Du siehst diese Anzeige basierend auf Ihrer Navigation auf unserer Website und den Suchkriterien, die du verwendet hast.
Lage
Die Gemeinde Heidgraben liegt ca. 18 km nordwestlich von Hamburg am Rande der Marschgebiete. Mit seinen rund 2.800 Einwohnern grenzt es an die Nachbarstädte Uetersen und Tornesch sowie an die Gemeinden Groß- und Klein Nordende. Das Ortszentrum findet sich im Bereich der Grundschule während das gesamte Gemeindegebiet eher...
Gastronomie/Hotel
Kategorie
Café/Bar
Baujahr
2013
Bezug
15.09.2026
Energie & Heizung
Warum sehe ich diese Anzeige? – Du siehst diese Anzeige basierend auf Ihrer Navigation auf unserer Website und den Suchkriterien, die du verwendet hast.
Wärme
Strom
Energieausweistyp
Bedarfsausweis
Gebäudetyp
Nicht-Wohngebäude
Wesentliche Energieträger
HOLZ
Gültigkeit
11.03.2026 bis 10.03.2036
Endenergiebedarf (Wärme)
290,40 kWh/(m²·a)
Endenergiebedarf (Strom)
23,30 kWh/(m²·a)
Weitere Energiedaten
Energieträger
Holz
Heizungsart
Ofen
Details
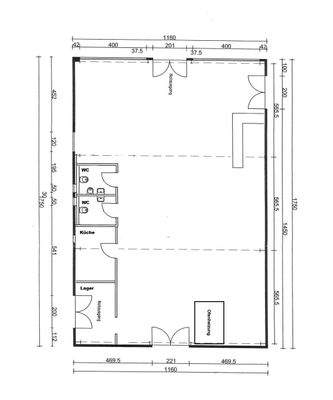
Objektbeschreibung
Diese Gastronomiefläche wird aktuell als Café betrieben und soll auch weiterhin für diese Nutzung vermietet werden.
Herzstück der Immobilie ist eine großzügige Halle mit einem einladenden Gastraum, der derzeit über etwa 50 Sitzplätze verfügt und vielseitige Gestaltungsmöglichkeiten bietet. Ergänzt wird der...
Ausstattung
- Moderne Halle mit großer Gastfläche (akt. ca. 50 Sitzplätze)
- Außenbereich mit Terrassenflächen für zusätzliche Sitzplätze
- Gut ausgestattete Küche
- Verkaufstresen / Servicebereich
- Separate WCs für Damen und Herren
- Abstellraum
- Inventar kann zum großen Teil übernommen werden
Weitere Informationen
Sonstiges
Die Verbrauchskosten (Strom und Wasser) muss der Mieter selbst direkt mit den Versorgern abrechnen.
Stichworte
Nutzfläche: 187,00 m², Gesamtfläche: 187,00 m², Distanz zum Flughafen: 31.00, Distanz zum Hauptbahnhof: 3.40, Distanz zur Autobahn: 6.70, Distanz zu U-/S-Bahn: 11.60, Distanz zum Bus: 0.60...
Anbieter der Immobilie
Martens & Kühl GmbH
Großer Wulfhagen 25, 25436 Uetersen

Online-ID: 2nsrv5v
Referenznummer: 7453
Finde Angebote wie dieses
Hier geht es zu unserem Impressum, den Allgemeinen Geschäftsbedingungen, den Hinweisen zum Datenschutz und nutzungsbasierter Online-Werbung.