
Uwe Rudolph Baubetreuung GmbH
Uwe Rudolph
034 ···
Nr. anzeigenPreise & Kosten
Provision für Käufer
10.640,- € inkl. 19% gesetzl. Mwst. in Höhe von 1.698,83 € (50% anteilige Kosten in Höhe von 5.320,- € inkl. gesetzl. Mwst.) inkl. MwSt.
Lage
Das Objekt befindet sich im beliebtesten Stadtteil Großzschocher. In 5 Fahrradminuten ist man am Landschaftspark Cospudener See.
Das Wohnhaus befindet sich in ruhiger Lage.
Öffentliche Verkehrsmittel, Einkaufsmöglichkeiten und Schulen befinden sich in unmittelbarer Nähe und in nur wenigen Gehminuten entfernt.
Die Wohnung
Wohnungslage
2. Geschoss
Wohnanlage
Energie & Heizung
Warum sehe ich diese Anzeige? – Du siehst diese Anzeige basierend auf Ihrer Navigation auf unserer Website und den Suchkriterien, die du verwendet hast.
Weitere Energiedaten
Energieträger
Gas
Heizungsart
Zentralheizung
Details
Objektbeschreibung
Bei dem Objekt handelt es sich um einen im Jahr 2000 sanierten Altbau mit 7 Wohnungen auf 4 Etagen. Die Wohnungen sind mit Balkon ausgestattet und im Kellerbereich befinden sich zusätzliche Abstellräume.
Auf dem begrüntem Hof befinden sich neben Sitzgelegenheiten, auch ein Außenstellplatz pro Wohnung. Es besitzt ein...
Ausstattung
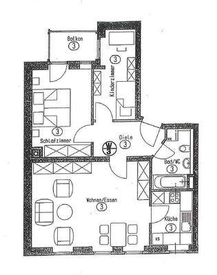
Die Wohnung befindet sich im 2. Obergeschoß des Hauses und ist leerstehend. Die Wände sind Raufaser weiß.
Wohn-, Schlaf-, Kinderzimmer und Bad erreicht man über den Flur.
Das Wohnzimmer mit seinen drei Fenstern ist nach Osten, das Schlaf- und Kinderzimmer sind nach Westen ausgerichtet.
Über Schlaf- und Kinderzimmer...
Preisinformation
Soll-Mieteinnahmen pro Jahr: 7.536,00 EUR
Weitere Informationen
Sonstiges
Bei der Neuvermietung ist eine monatliche Kaltmiete in Höhe von 628,- € zu erzielen.
Stichworte
Stellplatz vorhanden, Wohnungsnr.: 5
Anbieter der Immobilie
Uwe Rudolph Baubetreuung GmbH
Wurzner Str. 176, 04318 Leipzig
Online-ID: 2nsrl5x
Referenznummer: Hutte15-5.VK
Finde Angebote wie dieses
Hier geht es zu unserem Impressum, den Allgemeinen Geschäftsbedingungen, den Hinweisen zum Datenschutz und nutzungsbasierter Online-Werbung.