

Richardsen Immobilien-Vermietungen GmbH & Co KG
Herr Bahne Richardsen
046 ···
Nr. anzeigenPreise & Kosten
Provision für Käufer
3,57% inkl. der gesetzlichen MwSt.
Lage
Ruhige Wohnlage im Neubaugebiet nahe dem Zentrum von Leck. Die Innenstadt mit zahlreichen Einkaufsmöglichkeiten ist schnell zu erreichen. Leck verfügt durch die stündliche Verbindung des Schnellbusses Niebüll/Flensburg und die Anbindung an die B199 über eine gute Infrastruktur. Kindergärten, Schulen und Ärzte befinden sich...
Das Haus
Kategorie
Doppelhaushälfte
Energie & Heizung
Warum sehe ich diese Anzeige? – Du siehst diese Anzeige basierend auf Ihrer Navigation auf unserer Website und den Suchkriterien, die du verwendet hast.
Energieausweis: für diesen Gebäudetyp nicht notwendig
Details
Objektbeschreibung
Objekt-Nr. 100-600-7
Bauweise
Baujahr 2026, Holzständerwerk, Rotstein verklinkert, Dacheindeckung mit Betonpfannen in anthrazit als Walmdach, Fenster und Türen sind aus Kunststoff mit Isolierverglasung
Heizung
Kalte Nahwärme mit Wärmepumpe im gemeinschaftlichen Technikraum. Genauere Informationen senden...
Ausstattung
Besonderes
. Voraussichtlich bezugsfertig im Juni 2026
. Der Rohbau ist bereits fertiggestellt und kann besichtigt werden.
. Einbauküche
. ebenerdiges Wohnen
. Ausbaureserve im Dachgeschoss
. Terrasse
Weitere Informationen
Sonstiges
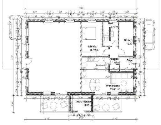
Raumaufteilung/Raumgrößen
Erdgeschoss:
Diele: 7,10 m²
Wohnküche: 29,40 m²
Schlafzimmer: 15,40 m²
Gästezimmer: 10,17 m²
Bad: 6,77 m²
Abstellraum: 1,40 m²
Erdgeschoss gesamt: ca. 70,24 m²
Wohnfläche gesamt: ca. 70,24 m²
Zzgl.: Dachboden, Terrasse
Für die Berechnungen der...
Anbieter der Immobilie

Richardsen Immobilien-Vermietungen GmbH & Co KG
Alte Schulstr. 4, 25899 Niebüll

Online-ID: 2nsrl5k
Referenznummer: 100-600-7
Finde Angebote wie dieses
Hier geht es zu unserem Impressum, den Allgemeinen Geschäftsbedingungen, den Hinweisen zum Datenschutz und nutzungsbasierter Online-Werbung.