
Debeka Bausparkasse AG
Herr Antonios Kupis
Kontaktiere den Anbieter schriftlich, es ist keine Telefonnummer hinterlegt.
Preise & Kosten
Provision für Käufer
3,57% inkl. MwSt.
Lage
Die Doppelhaushälfte befindet sich in einer attraktiven, familienfreundlichen Wohngegend, die Ruhe und Lebensqualität ideal miteinander verbindet. Die Nachbarschaft ist geprägt von gepflegten Ein- und Doppelhäusern - perfekt für Familien oder Paare, die ein sicheres und harmonisches Wohnumfeld schätzen.
Ideale...
Das Haus
Kategorie
Doppelhaushälfte
Baujahr
2003
Bezug
sofort
Energie & Heizung
Warum sehe ich diese Anzeige? – Du siehst diese Anzeige basierend auf Ihrer Navigation auf unserer Website und den Suchkriterien, die du verwendet hast.
Energieausweistyp
Verbrauchsausweis
Gebäudetyp
Wohngebäude
Wesentliche Energieträger
Gas
Gültigkeit
30.10.2025 bis 29.10.2035
Effizienzklasse
B
Endenergieverbrauch
59,00 kWh/(m²·a)
Weitere Energiedaten
Energieträger
Gas
Heizungsart
Etagenheizung
Details
Objektbeschreibung
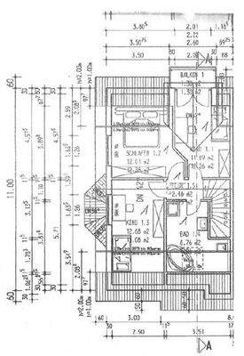
Diese gepflegte Doppelhaushälfte bietet ein durchdachtes Raumkonzept mit insgesamt fünf Zimmern, verteilt auf drei Ebenen, und eignet sich ideal für Familien oder Paare mit Platzbedarf für Homeoffice.
Im Erdgeschoss empfängt Sie ein funktionaler Eingangsbereich mit Gäste-WC. Die separate, voll ausgestattete Küche...
Ausstattung
Highlights - auf einen Blick
. Fünf helle Zimmer auf drei Ebenen - ideal für Familien oder Homeoffice
. Wohn- und Essbereich mit Pelletofen für gemütliche Wohlfühlatmosphäre
. Separate, voll ausgestattete Küche mit allen gängigen Elektrogeräten
. Zwei Bäder + Gäste-WC
. Kinderzimmer mit kleinem Balkon
...
Weitere Informationen
Sonstiges
Die genannten Informationen beruhen auf den Angaben des Verkäufers. Für die Richtigkeit und Vollständigkeit der Angaben wird keine Gewähr oder Haftung übernommen.
Seit dem 25. Mai 2018 gilt in Deutschland die EU-Datenschutz-Grundverordnung (DS-GVO). Sie regelt, wie private Unternehmen und öffentliche...
Anbieter der Immobilie

Debeka Bausparkasse AG
Debeka-Platz 2, 56073 Koblenz
Herr Antonios Kupis
Dein Ansprechpartner
Kontaktiere den Anbieter schriftlich, es ist keine Telefonnummer hinterlegt.
Online-ID: 2nspq53
Referenznummer: 1008932#4Fd7ty
Finde Angebote wie dieses
Hier geht es zu unserem Impressum, den Allgemeinen Geschäftsbedingungen, den Hinweisen zum Datenschutz und nutzungsbasierter Online-Werbung.