

Engel & Völkers - Elmshorn
Herr Thomas Schäfer
041 ···
Nr. anzeigenPreise & Kosten
Provision für Käufer
3.57 % inkl. gesetzl. MwSt.
Lage
Das Zuhause liegt in Heiligenstedtenerkamp, einer kleinen, naturnahen Gemeinde vor den Toren Itzehoes. Hier genießen Familien eine ruhige, grüne Umgebung mit kurzen Wegen zu Kindergärten, Schulen und Einkaufsmöglichkeiten. Ärzte, Sportvereine und Freizeitangebote sind ebenfalls schnell erreichbar und bieten eine rundum gute...
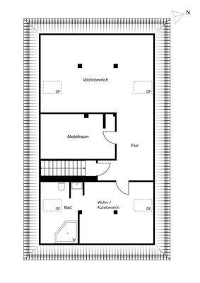
Das Haus
Baujahr
1976
Energie & Heizung
Warum sehe ich diese Anzeige? – Du siehst diese Anzeige basierend auf Ihrer Navigation auf unserer Website und den Suchkriterien, die du verwendet hast.
Energieausweistyp
Bedarfsausweis
Gebäudetyp
Wohngebäude
Baujahr laut Energieausweis
1976
Wesentliche Energieträger
Gas
Gültigkeit
26.09.2025 bis 25.09.2035
Effizienzklasse
D
Endenergiebedarf
127,24 kWh/(m²·a)
Weitere Energiedaten
Energieträger
Gas
Heizungsart
Zentralheizung
Details
Objektbeschreibung
Dieses modernisierte Einfamilienhaus aus dem Jahr 1976 überzeugt durch seine Großzügigkeit, die besondere Lage sowie zahlreiche Ausstattungsdetails. Auf einem wunderbar angelegten Grundstück von ca. 1.508 m² bietet die Immobilie ideale Bedingungen für Menschen mit Platzbedarf oder dem Wunsch nach naturnahem Wohnen in...
Weitere Informationen
Sonstiges
Der Makler-Vertrag mit uns und/oder unserem Beauftragten kommt durch schriftliche Vereinbarung oder durch die Inanspruchnahme unserer Maklertätigkeit auf der Basis des Objekt-Exposés und seiner Bedingungen zustande. Die Käufercourtage in Höhe von 3,57 % auf den Kaufpreis einschließlich gesetzlicher Umsatzsteuer...
Anbieter der Immobilie

Online-ID: 2nslw59
Referenznummer: W-047TW6
Finde Angebote wie dieses
Hier geht es zu unserem Impressum, den Allgemeinen Geschäftsbedingungen, den Hinweisen zum Datenschutz und nutzungsbasierter Online-Werbung.