
Immobilienbüro Kühn GmbH Co. KG, Komplimentär: Immobilienbüero Kühn Verwaltungs GmbH
Immobilienbüro Kühn Vermietung
+49 ···
Nr. anzeigenPreise & Kosten
Kaution
978,00 978EUR
Warum sehe ich diese Anzeige? – Du siehst diese Anzeige basierend auf Ihrer Navigation auf unserer Website und den Suchkriterien, die du verwendet hast.
Lage
Die Große Kreisstadt Plauen mit ca. 66.000 Einwohnern ist ein Oberzentrum im Südwesten des Freistaates Sachsen und die Kreisstadt des Vogtlandkreises. Zugleich ist sie die größte Stadt des sächsischen Vogtlandes und fünftgrößte Stadt im Freistaat. Sie liegt verkehrsgünstig an der Nahtstelle zu Bayern, Böhmen und Thüringen, im...
Die Wohnung
Wohnungslage
1. Geschoss
Bezug
sofort
Wohnanlage
Energie & Heizung
Warum sehe ich diese Anzeige? – Du siehst diese Anzeige basierend auf Ihrer Navigation auf unserer Website und den Suchkriterien, die du verwendet hast.
Energieausweistyp
Verbrauchsausweis
Gebäudetyp
Wohngebäude
Baujahr laut Energieausweis
1994
Wesentliche Energieträger
Gas
Gültigkeit
14.01.2019 bis 13.01.2029
Effizienzklasse
B
Endenergieverbrauch
70,00 kWh/(m²·a) - Warmwasser enthalten
Weitere Energiedaten
Energieträger
Gas
Heizungsart
Zentralheizung
Details
Objektbeschreibung
Das Wohn- und Geschäftshaus in der Burgstraße 49 wurde lt. Energieausweis 1994 erbaut und befindet sich unweit des Plauener Zentrums.
Das Objekt ist voll unterkellert und mit einem Fahrstuhl ausgestattet.
Unter dem Kellergeschoss befindet sich eine Tiefgarage.
Ausstattung
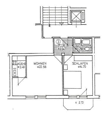
Die 3-Raum Wohnung im 1. Obergeschoss der Immobilie ist lt. Planung ca. 50,18 m² groß und teilt sich wie folgt auf:
- Flur
- Schlafzimmer
- Küche
- Wohnzimmer
- Badezimmer
- Balkon
Alle Räume sind über den Flur zu erreichen.
Das Badezimmer ist innenliegend.
Zur Wohnung Nr. 03 gehört ein...
Weitere Informationen
Sonstiges
Dieses Angebot entspricht noch nicht Ihren Wünschen...?
Besuchen Sie auch unsere Homepage mit vielen weiteren Wohnungsangeboten oder sprechen Sie uns persönlich an. Wir präsentieren Ihnen gern weitere Objekte.
Alle Angaben beruhen auf Aussagen Dritter und erfolgen ohne Gewähr. Exposé © Immobilienbüro...
Dokumente
Online-ID: 2nsj95l
Referenznummer: BURG49-03
Finde Angebote wie dieses
Hier geht es zu unserem Impressum, den Allgemeinen Geschäftsbedingungen, den Hinweisen zum Datenschutz und nutzungsbasierter Online-Werbung.