
Immobilienbüro Hochmann
Herr Berndt Hochmann
(07 ···
Nr. anzeigenPreise & Kosten
Provision für Käufer
provisionsfrei
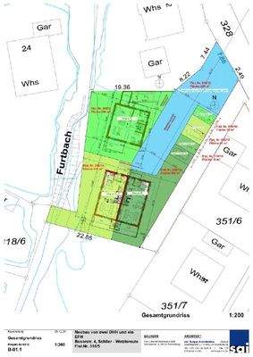
Lage
Viel Licht - viel Sonne - viel Grün - raus aus der Nebelzone des Schussentales:
Die Lage im beliebten und beschaulichen Wetzisreute bei Schlier ist sehr idyllisch und ländlich. Mit dem Auto sind Sie, ampelfrei, in nur wenigen Fahrminuten in Ravensburg am Marienplatz. Jedenfalls um ein Vielfaches schneller, als jemand...
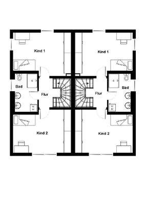
Das Haus
Kategorie
Doppelhaushälfte
Bezug
2026
Energie & Heizung
Warum sehe ich diese Anzeige? – Du siehst diese Anzeige basierend auf Ihrer Navigation auf unserer Website und den Suchkriterien, die du verwendet hast.
Weitere Energiedaten
Heizungsart
Zentralheizung
Details
Objektbeschreibung
Im sehr beliebten Teilort von Schlier-Wetzisreute, entsteht hier auf einem Filetgrundstück ein hübsches Häuserensemble, bestehend aus zwei außergewöhnlichen Doppelhaushälften und einem sehr attraktiven Einfamilienhaus. Das Grundstück ist eingebettet in die bestehende, dörfliche Bebauung und wird sehr idyllisch durch einen...
Ausstattung
Alle Häuser werden in der bekannt guten "Hochmann-Qualität" errichtet.
Die Bauausführung erfolgt entsprechend unserer Bau- und Leistungsbeschreibung, die Sie gerne anfordern können.
Das Gebäude und die Gebäudetechnik werden selbstverständlich nach den Vorgaben der jeweils neuesten, gesetzlich vorgeschriebenen...
Preisinformation
2 Carportplätze
Weitere Informationen
Sonstiges
Heizungsart: Wärmepumpe
Drei wichtige oft gestellte Fragen:
1)Wie erfolgt die Bezahlung? Die Bezahlung erfolgt nach den Vorgaben der gesetzlich gültigen und vorgeschriebenen Makler- und Bauträgerverordnung, der sogenannten "MaBV", ein Ratenzahlungsplan entsprechend des Baufortschrittes. Erst nach...
Anbieter der Immobilie

Immobilienbüro Hochmann
Online-ID: 2nsfy5k
Referenznummer: 4237
Finde Angebote wie dieses
Hier geht es zu unserem Impressum, den Allgemeinen Geschäftsbedingungen, den Hinweisen zum Datenschutz und nutzungsbasierter Online-Werbung.