

David & Jacques Immobilien
Frau Sabrina Beck
+49 ···
Nr. anzeigenPreise & Kosten
Warum sehe ich diese Anzeige? – Du siehst diese Anzeige basierend auf Ihrer Navigation auf unserer Website und den Suchkriterien, die du verwendet hast.
Lage
Dich erwartet hier ein Rückzugsort über den Dächern der Stadt - ein Platz für weite Blicke, tiefe Atemzüge und entspannte Stunden auf der großzügigen Terrasse, die jeden Tag ein kleines Innehalten schenkt.
Das darüber abgebildete Foto zeigt diese Aussicht an einem klaren Sommertag: Mit freiem Blick bis zu den Alpen...
Die Wohnung
Kategorie
Penthouse
Wohnungslage
9. Geschoss
Bezug
sofort
Wohnanlage
Energie & Heizung
Warum sehe ich diese Anzeige? – Du siehst diese Anzeige basierend auf Ihrer Navigation auf unserer Website und den Suchkriterien, die du verwendet hast.
Energieausweistyp
Bedarfsausweis
Gebäudetyp
Wohngebäude
Baujahr laut Energieausweis
2016
Wesentliche Energieträger
FERN
Gültigkeit
bis 30.10.2026
Effizienzklasse
C
Endenergiebedarf
99,00 kWh/(m²·a)
Weitere Energiedaten
Energieträger
Fernwärme
Details
Objektbeschreibung
Genieße einen atemberaubenden Blick bis zu den Alpen, entspannende Ruhe und sonnenverwöhnte Privatsphäre auf Deiner ca. 162 m² großen Dachterrasse!
Lichtdurchflutete Räume prägen dieses beeindruckende Penthouse und großzügige Fensterflächen garantieren zu drei Himmelsrichtungen ein natürliches Lichtambiente...
Ausstattung
- neu errichtetes Penthouse im Zuge der Gebäudeaufstockung (2017)
- umfangreiche (energetische) Sanierungsmaßnahmen am Gemeinschaftseigentum (2017)
- Lift führt bis in den 8. Stock
- sonnige und großzügige Dachterrasse mit Blick bis zu den Alpen
- offener Wohn-/Ess-/Kochbereich mit umfangreichem...
Preisinformation
3 Tiefgaragenstellplätze
Weitere Informationen
Stichworte
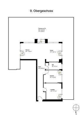
Nutzfläche: 121,00 m², Anzahl der Schlafzimmer: 2, Anzahl der Badezimmer: 1, Anzahl Terrassen: 1, 9 Etagen
Sonstiges: frei werdend
Anbieter der Immobilie

Online-ID: 2nsfx5r
Referenznummer: SB-11523-ASA-M
Finde Angebote wie dieses
Hier geht es zu unserem Impressum, den Allgemeinen Geschäftsbedingungen, den Hinweisen zum Datenschutz und nutzungsbasierter Online-Werbung.