
Debeka Bausparkasse AG
Herr Uwe Lentjes
Kontaktiere den Anbieter schriftlich, es ist keine Telefonnummer hinterlegt.
Preise & Kosten
Provision für Käufer
2,38% inkl. MwSt.
Lage
Geilenkirchen ist eine beliebte Stadt im südlichen Kreis Heinsberg mit guter Infrastruktur und umfangreichen Kultur- und Freizeitangeboten. Im Zentrum von Geilenkirchen befinden sich alle Einrichtungen für ein angenehmes Leben und des täglichen Bedarfs. Auch finden Sie neben Kindergärten, Grundschulen und weiterführende...
Das Haus
Kategorie
Einfamilienhaus
Baujahr
1964
Bezug
sofort
Energie & Heizung
Warum sehe ich diese Anzeige? – Du siehst diese Anzeige basierend auf Ihrer Navigation auf unserer Website und den Suchkriterien, die du verwendet hast.
Energieausweistyp
Bedarfsausweis
Gebäudetyp
Wohngebäude
Baujahr laut Energieausweis
1964
Wesentliche Energieträger
Gas
Gültigkeit
05.09.2025 bis 05.09.2035
Effizienzklasse
E
Endenergiebedarf
130,10 kWh/(m²·a)
Weitere Energiedaten
Energieträger
Gas
Heizungsart
Etagenheizung, offener Kamin
Details
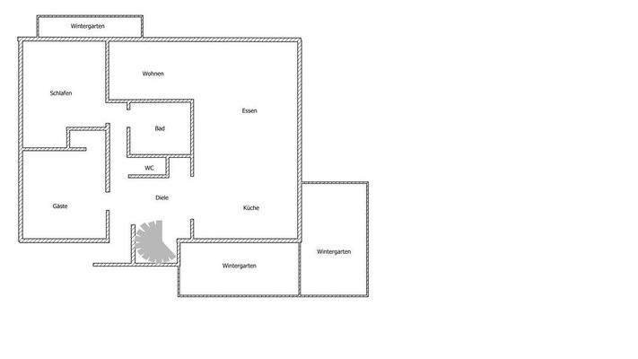
Objektbeschreibung
Angeboten wird eine Immobilie im Herzen von Geilenkirchen, ruhig gelegen, in begehrter, zentrumsnaher Lage.
Das Objekt wurde im Jahr 1964 auf einem Grundstück, welches über 1384m² verfügt, errichtet.
Dadurch, dass der Keller nur hälftig ins Erdreich gebaut wurde, ist das Erdgeschoss höher, als das Grundstück...
Ausstattung
Das Objekt wurde im Jahr 1964 errichtet und in den vergangenen Jahren immer wieder modernisiert. Beheizt wird es durch eine Gastherme aus dem Jahr 2016, so dass sie vor weiteren Investitionen vorerst länger geschützt sind. Auch das Dach wurde 2002 in der Folienflachdachausführung erneuert. Diese Form ist die aufwendigste Art...
Weitere Informationen
Sonstiges
Die genannten Informationen beruhen auf den Angaben des Verkäufers. Für die Richtigkeit und Vollständigkeit der Angaben wird keine Gewähr oder Haftung übernommen.
Seit dem 25. Mai 2018 gilt in Deutschland die EU-Datenschutz-Grundverordnung (DS-GVO). Sie regelt, wie private Unternehmen und öffentliche...
Anbieter der Immobilie

Debeka Bausparkasse AG
Debeka-Platz 2, 56073 Koblenz
Herr Uwe Lentjes
Dein Ansprechpartner
Kontaktiere den Anbieter schriftlich, es ist keine Telefonnummer hinterlegt.
Online-ID: 2nsey54
Referenznummer: 1008865#4Fd7ty
Finde Angebote wie dieses
Hier geht es zu unserem Impressum, den Allgemeinen Geschäftsbedingungen, den Hinweisen zum Datenschutz und nutzungsbasierter Online-Werbung.