

Hansestadt Immobilien GmbH
Frau Rosalia Fallapp
041 ···
Nr. anzeigenPreise & Kosten
Provision für Käufer
3,57% [inkl. der gesetzlichen MwSt.]
Lage
Der idyllische Ortsteil Garlstorf gehört zur Stadt Bleckede im Landkreis Lüneburg und zeichnet sich durch seine ländliche, naturnahe Lage in der Elbmarsch aus. Das traditionelle Marschhufendorf mit wenigen hundert Einwohnern bietet eine ruhige Wohnumgebung, eingebettet zwischen weitläufigen Grünflächen, Auenlandschaften und...
Das Haus
Kategorie
Einfamilienhaus
Baujahr
1976
Bezug
nach Vereinbarung
Energie & Heizung
Warum sehe ich diese Anzeige? – Du siehst diese Anzeige basierend auf Ihrer Navigation auf unserer Website und den Suchkriterien, die du verwendet hast.
Energieausweistyp
Bedarfsausweis
Gebäudetyp
Wohngebäude
Wesentliche Energieträger
Öl
Gültigkeit
07.10.2022 bis 07.10.2032
Effizienzklasse
E
Endenergiebedarf
157,30 kWh/(m²·a)
Weitere Energiedaten
Energieträger
Öl
Heizungsart
offener Kamin, Zentralheizung
Details
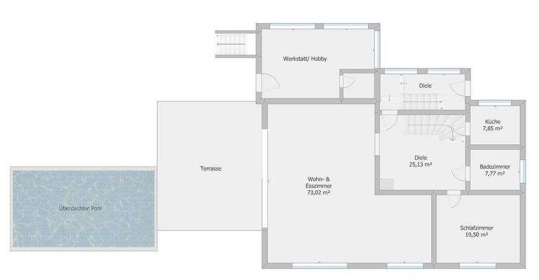
Objektbeschreibung
Dieses Einfamilienhaus wurde 1976 in massiver Bauweise auf einem 6.593 m² großem Eigentumsgrundstück errichtet. Das parkähnliche, sehr gepflegte Grundstück ist in etwa 1.262 m² Wohnbaufläche und 5.331 m² Siedlungsgrünfläche aufgeteilt. Für Gartenliebhaber und Selbstversorger bietet das Grundstück ideale Voraussetzungen für...
Ausstattung
. 1.262 m² Wohnbaufläche und 5.331 m² Siedlungsgrünfläche
. ca. 131 m² Nutzfläche im Keller
. über 100 m² Ausbaureserve im Dachgeschoss
. Teils ausgebauter und beheizter Vollkeller mit einem Zimmer, Hobbyraum / Bar, Duschbad, Sauna und Außenzugang
. Öl-Heizung von 2014
. Solarthermie für die...
Weitere Informationen
Sonstiges
Bitte haben Sie Verständnis dafür, dass wir unseren Auftraggebern Diskretion zugesagt haben und Ihrer Anfrage nach einem ausführlichen Exposé nur nachkommen können, wenn Sie uns Ihren Namen, die Telefonnummer, die E-Mail Adresse und Ihre postalische Anschrift mitteilen.
Eine Haftung für die Richtigkeit...
Anbieter der Immobilie

Online-ID: 2nsew56
Referenznummer: HI20253100
Finde Angebote wie dieses
Hier geht es zu unserem Impressum, den Allgemeinen Geschäftsbedingungen, den Hinweisen zum Datenschutz und nutzungsbasierter Online-Werbung.