

Christiana Baur Immobilien
Herr Daniel Lontschar
+49 ···
Nr. anzeigenPreise & Kosten
Provision für Käufer
3,57% inkl. der gesetzlichen Mehrwertsteuer
Zuzüglich zum Kaufpreis sind folgende Nebenkosten vom Käufer zu entrichten: Grunderwerbsteuer 5%, Notargebühren ca. 2% und Maklergebühren 3,57% inkl. Weitere Informationen siehe Provisionshinweis.
Lage
Im sonnigen Wohngebiet von Truchtelfingen mit 744 m² Grundstücksfläche liegt das Einfamilienhaus in schöner Lage.
Truchtelfingen liegt auf der schwäbischen Alb in einer Höhe von etwa 700 - 800 Meter und ist geprägt von Wäldern und Wiesen, somit bietet die Region beste Bedingungen für Wanderungen und Radtouren.
Das Haus
Kategorie
Einfamilienhaus
Baujahr
1930
Bezug
sofort
Energie & Heizung
Warum sehe ich diese Anzeige? – Du siehst diese Anzeige basierend auf Ihrer Navigation auf unserer Website und den Suchkriterien, die du verwendet hast.
Weitere Energiedaten
Energieträger
Öl
Heizungsart
offener Kamin, Zentralheizung
Details
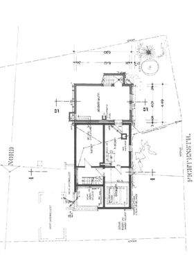
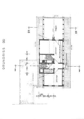
Objektbeschreibung
Im Erdgeschoss über den Windfang befindet man sich im Herzen des Hauses. Hier ist ein großer und offener Wohn- und Essbereich mit Holz-Kachelofen und Zugang auf den Balkon. Die Küche ist separat und sehr großzügig. Neben dem Elternschlafzimmer ist das Bad, ausgestattet mit einer Badewanne, einer Dusche, einer Toilette , einem...
Ausstattung
Das massiv gebaute Familienhaus ist sehr gepflegt und sucht nun neue Besitzer die ihm frischen Glanz verpassen:
- Umbau und Anbau 1983
- Öl-Zentralheizung 1991 (Niedertemperaturkessel)
- 2-fach isolierverglaste Fenster
- Gartenhaus mit Markise
- Parkettböden
- Holz-Kachelofen
Preisinformation
1 Garagenstellplatz
Weitere Informationen
Provisionshinweis
3,57% inkl. der gesetzlichen Mehrwertsteuer
Zuzüglich zum Kaufpreis sind folgende Nebenkosten vom Käufer zu entrichten: Grunderwerbsteuer 5%, Notargebühren ca. 2% und Maklergebühren 3,57% inkl. der gesetzlichen Mehrwertsteuer. Bei Kaufpreis unter 100.000,- Euro beträgt die Maklergebühr pauschal 3.570,-...
Anbieter der Immobilie

Online-ID: 2nsef5p
Referenznummer: 1839
Finde Angebote wie dieses
Hier geht es zu unserem Impressum, den Allgemeinen Geschäftsbedingungen, den Hinweisen zum Datenschutz und nutzungsbasierter Online-Werbung.