
Classic Immobilien
Herr Lennard Merbeth
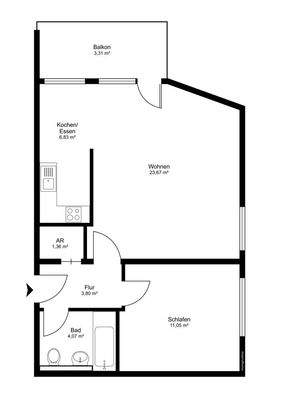
004 ···
Nr. anzeigenPreise & Kosten
Provision für Käufer
3,57% inkl. Mwst.
Lage
Das Wohngebäude liegt in Schenefeld im Kreis Pinneberg. Das Umfeld ist geprägt von einer ruhigen Wohnbebauung mit Mehrfamilienhäusern und gepflegten Außenanlagen. Das Einkaufszentrum "Staddi", Schulen, Kindertagesstätten sowie ärztliche Versorgung sind im Ort vorhanden und gut erreichbar. Eine Anbindung an den öffentlichen...
Die Wohnung
Bezug
Nach Vereinbarung
Derzeitige Nutzung
vermietet
Wohnanlage
Energie & Heizung
Warum sehe ich diese Anzeige? – Du siehst diese Anzeige basierend auf Ihrer Navigation auf unserer Website und den Suchkriterien, die du verwendet hast.
Energieausweistyp
Verbrauchsausweis
Gebäudetyp
Wohngebäude
Baujahr laut Energieausweis
1994
Wesentliche Energieträger
ERDGAS_SCHWER
Gültigkeit
bis 30.05.2028
Effizienzklasse
E
Endenergieverbrauch
136,00 kWh/(m²·a)
Weitere Energiedaten
Energieträger
Gas
Details
Objektbeschreibung
Zum Verkauf steht ein aus drei Wohneinheiten bestehendes Wohnungspaket in gewachsener Wohnlage von Schenefeld im Kreis Pinneberg. Die Einheiten befinden sich in einem gepflegten Mehrfamilienhaus mit insgesamt 12 Wohneinheiten aus dem Baujahr 1994 und sind vollständig vermietet.
Jede Wohnung verfügt über eine funktionale...
Ausstattung
Besondere Merkmale möchten wir für Sie hervorheben:
- Gaszentralheizung
- Balkone und Terrasse je nach Wohneinheit
- Erdgeschosswohnung mit Gartenanteil und Terrasse
- Praktische Grundrisse mit separaten Küchen oder halboffenem Wohn-Küchen-Bereich
- Tageslichtbäder mit Badewanne und/oder Dusche
-...
Preisinformation
3 Stellplätze
Soll-Mieteinnahmen pro Jahr: 23.466,84 EUR
Ist-Mieteinnahmen pro Jahr: 23.466,84 EUR
Weitere Informationen
Sonstiges
Um die Privatsphäre der Mieter zu schützen, wurden einige Bilder mithilfe von KI aufgeräumt jedoch nicht verändert.
Das Wohngeld beträgt 3.246,83 €, davon sind 1.389,91 € nicht Umlagefähig.
Das Wohngeld für die Wohnungen beträgt monatlich:
WE 04 - 270,57 € nicht Umlagefähiger Anteil 115,82...
Anbieter der Immobilie
Online-ID: 2nse955
Referenznummer: 1043
Finde Angebote wie dieses
Hier geht es zu unserem Impressum, den Allgemeinen Geschäftsbedingungen, den Hinweisen zum Datenschutz und nutzungsbasierter Online-Werbung.