
Flowimmobilien
Herr Andreas Zielke
+49 ···
Nr. anzeigenPreise & Kosten
Provision für Käufer
7,14 % inkl. MwSt.
Lage
Die Immobilie befindet sich in zentraler Lage der Kreisstadt Königs Wusterhausen im Landkreis Dahme-Spreewald, südöstlich von Berlin. Mit rund 38.000 Einwohnern zählt die Stadt zu den bedeutenden Mittelzentren im Berliner Umland und profitiert von ihrer attraktiven Lage zwischen Hauptstadtregion und den wasser- und...
Büro-/Praxisfläche
Kategorie
Bürogebäude
Baujahr
2003
Bezug
01.01.2028
Derzeitige Nutzung
vermietet
Details
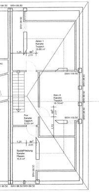
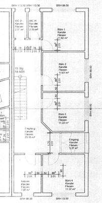
Objektbeschreibung
Dieses gepflegte Geschäftshaus bietet eine funktionale und zugleich repräsentative Aufteilung über drei Etagen sowie zusätzliche Nutzflächen im Keller. Die Immobilie eignet sich ideal für Unternehmen, die Büro-, Besprechungs- und Nebenflächen in einem Gebäude vereinen möchten.
Bereits im Erdgeschoss empfängt ein...
Preisinformation
7 Stellplätze
Weitere Informationen
Sonstiges
Die Immobilie ist bis zum 31.12.2027 vermietet und danach frei verfügbar.
Für die Richtigkeit der Angaben können wir keine Haftung und/oder Gewährleistung übernehmen.
Irrtum und Zwischenverkauf vorbehalten.
Sie Ihre Immobilie verkaufen wollen oder müssen, ermitteln wir Ihnen kostenfrei den...
Anbieter der Immobilie
Flowimmobilien
Fuchsbau 13, 15745 Wildau
Online-ID: 2nsby5y
Referenznummer: 128241599#gDwWfu
Finde Angebote wie dieses
Hier geht es zu unserem Impressum, den Allgemeinen Geschäftsbedingungen, den Hinweisen zum Datenschutz und nutzungsbasierter Online-Werbung.