
RUHR REAL GmbH
Herr Frederic Jeschke
+49 ···
Nr. anzeigenPreise & Kosten
Provision für Mieter
provisionsfrei
Warum sehe ich diese Anzeige? – Du siehst diese Anzeige basierend auf Ihrer Navigation auf unserer Website und den Suchkriterien, die du verwendet hast.
Lage
Die Liegenschaft befindet sich im etablierten Stadtteil Altenhagen von Hagen, eingebettet in ein gemischt genutztes urbanes Umfeld. Die Verkehrsanbindung ist hervorragend: Das Autobahnkreuz Hagen (A45/A46) und die A1 sind in ca. fünf Fahrminuten erreichbar, was eine sehr gute überregionale Erreichbarkeit sicherstellt. Der...
Büro-/Praxisfläche
Kategorie
Bürofläche
Baujahr
1980
Bezug
04/2027
Derzeitige Nutzung
frei
Energie & Heizung
Warum sehe ich diese Anzeige? – Du siehst diese Anzeige basierend auf Ihrer Navigation auf unserer Website und den Suchkriterien, die du verwendet hast.
Weitere Energiedaten
Energieträger
Gas
Details
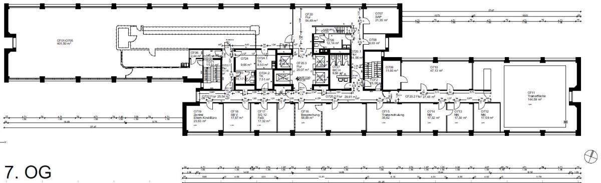
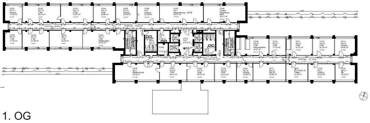
Objektbeschreibung
Bei der angebotenen Immobilie handelt es sich um einen attraktiven Bürokomplex mit acht großzügigen Etagen. Das Gebäude wurde zuletzt 2021 modernisiert und verfügt über mehrere Personenaufzüge, die barrierefrei zu den vollklimatisierten Flächen führen. Neben einer hauseigenen Kantine stehen dem Nutzer etwa 150...
Ausstattung
. Bodenbelag: Teppichboden, Kunststoffboden
. Sonnenschutz: außenliegend, elektrisch
. Beleuchtung: Deckenleuchten
. Kühlung: Klimaanlage
. Verkabelung: vom Vormieter
. Verkabelungsort: Brüstungskanäle
. Aufzug: Personenaufzüge
. Teeküche: voll ausgestattet
. Heizungsart: Gaszentralheizung
Die...
Weitere Informationen
Sonstiges
Es gelten ausschließlich unsere AGB (www.ruhr-real.de/agb). Wir möchten Sie darauf hinweisen, dass die Angaben ausschließlich auf den uns vom Eigentümer übermittelten Unterlagen und Informationen basieren. Für Richtigkeit und Vollständigkeit übernehmen wir keine Gewähr. Zwischenvermietung vorbehalten.
Anbieter der Immobilie

RUHR REAL GmbH
Holsterhauser Platz 2, 45147 Essen
Online-ID: 2nsam5x
Referenznummer: 4775/E7
Finde Angebote wie dieses
Hier geht es zu unserem Impressum, den Allgemeinen Geschäftsbedingungen, den Hinweisen zum Datenschutz und nutzungsbasierter Online-Werbung.