

IPM UG (haftungsbeschränkt)
Herr Rainer Vogel
004 ···
Nr. anzeigenPreise & Kosten
Provision für Käufer
provisionsfrei
Lage
Ruhige Ortsrandlage in gewachsener Wohngegend.
Einkaufsmärkte sowie der Altort sind fußläufig zu erreichen.
Autobahnanschluss BA-Nord/Memmelsdorf 2 KM entfernt, Bamberg-Zentrum erreichen Sie in 5 KM
Das Haus
Kategorie
Bungalow
Baujahr
2027
Bezug
sofort
Energie & Heizung
Warum sehe ich diese Anzeige? – Du siehst diese Anzeige basierend auf Ihrer Navigation auf unserer Website und den Suchkriterien, die du verwendet hast.
Energieausweis: für diesen Gebäudetyp nicht notwendig
Weitere Energiedaten
Haustyp
Massivhaus
Heizungsart
Fußbodenheizung, Luft-/Wasser-Wärmepumpe
Details
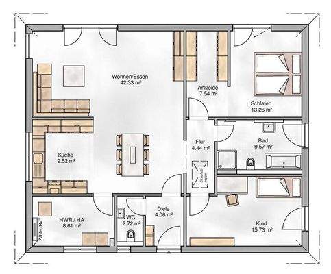
Objektbeschreibung
Die ab Mitte 2026 verfügbaren und voll erschlossenen Bauflächen liegen am östlichen Ortsrand von Memmelsdorf und ermöglichen verschiedene Bauformen.
Bei dem hier angebotenen Haus handelt es sich um einen altersgerecht geplanten Bungalow in Massivbauweise auf Bodenplatte. Alternativ kann auch in Holzrahmenbauweise...
Ausstattung
+ Massivhaus mit "Kachelofeneffekt" - im Winter warm und im Sommer angenehm kühl
+ Jedes Haus ein zu 100% frei planbares und Individuelles Architektenhaus
+ KFW 55 Standard - hohe Energieeffizient, KFW 40 oder 40+ optional
+ Festpreisgarantie für Ihr Haus
+ kurze Bauzeiten
+ gehobene Ausstattung bekannter...
Weitere Informationen
Sonstiges
Angebotspreis *Berechnungsbeispiel: Inkl. Haus malerfertig auf Bodenplatte, Baugrundstück und Erdarbeiten unter der Bodenplatte nach Baubeschreibung. Ohne Baunebenkosten und ohne Grunderwerbskosten.
Die Abbildungen zeigen zum Teil Sonderausstattungen. Flächenangaben nach DIN 277.
Änderungen des Preises...
Anbieter der Immobilie

Online-ID: 2ns925p
Referenznummer: 01015-RV MD8d
Finde Angebote wie dieses
Hier geht es zu unserem Impressum, den Allgemeinen Geschäftsbedingungen, den Hinweisen zum Datenschutz und nutzungsbasierter Online-Werbung.