
ohne-makler.net - Immobilien selbst vermarkten
Privat vom Eigentümer
Kontaktiere den Anbieter schriftlich, es ist keine Telefonnummer hinterlegt.
Preise & Kosten
Provision für Käufer
provisionsfrei
Lage
- Gefragte Wohnlage im Süden Nürnbergs mit viel Grün und angenehmer Atmosphäre
- Ruhiges, gepflegtes Umfeld, geprägt von attraktiven Mehrfamilienhäusern
- Hervorragende Verkehrsanbindung - Bus und U-Bahn sind schnell erreichbar
- Die Nürnberger Innenstadt liegt nur etwa 10-15 Minuten entfernt
-...
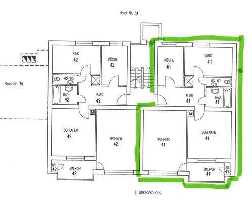
Die Wohnung
Bezug
sofort
Derzeitige Nutzung
vermietet
Wohnanlage
Energie & Heizung
Warum sehe ich diese Anzeige? – Du siehst diese Anzeige basierend auf Ihrer Navigation auf unserer Website und den Suchkriterien, die du verwendet hast.
Energieausweistyp
Bedarfsausweis
Gebäudetyp
Wohngebäude
Effizienzklasse
C
Endenergiebedarf
81,00 kWh/(m²·a)
Weitere Energiedaten
Energieträger
Gas
Heizungsart
Zentralheizung
Details
Objektbeschreibung
Diese gepflegte Wohnung in der beliebten Nürnberger Gartenstadt spricht gleichermaßen Selbstnutzer wie Investoren an. Durch die Modernisierung im April 2024 zeigt sich das Objekt stilvoll und zeitgemäß. Der helle Wohn- und Essbereich sorgt für Offenheit, und der geschützte Balkon mit unverbaubarem Blick lädt dazu ein, die...
Ausstattung
Balkon, Keller, Fahrstuhl, Duschbad, Einbauküche
Bemerkungen:
Die Wohnung wurde im April 2024 modernisiert und bietet folgende Ausstattungsmerkmale:
- Hochwertiger Vinylboden in Holzoptik in allen Wohnräumen
- Gepflegte Einbauküche
- Großzügiger Wohn- und Essbereich mit viel Tageslicht
- Privater...
Preisinformation
1 Tiefgaragenstellplatz, Kaufpreis: 15.000,00 EUR
Weitere Informationen
Sonstiges
Heizungsart: Zentralheizung
Energieträger: Gas
Makleranfragen nicht erwünscht. Nach § 7 UWG sind unaufgeforderte Kontaktaufnahmen durch Makler ohne ausdrückliche Einwilligung des Empfängers verboten!
ohne-makler (OM) ist weder Anbieter noch Vermittler der Immobilie. OM betreibt eine Plattform...
Anbieter der Immobilie
ohne-makler.net - Immobilien selbst vermarkten
Humboldtstr. 25 A, 21509 Glinde
Privat vom Eigentümer
Dein Ansprechpartner
Kontaktiere den Anbieter schriftlich, es ist keine Telefonnummer hinterlegt.
Online-ID: 2ns8c5d
Referenznummer: 425671
Finde Angebote wie dieses
Hier geht es zu unserem Impressum, den Allgemeinen Geschäftsbedingungen, den Hinweisen zum Datenschutz und nutzungsbasierter Online-Werbung.