

Immobilien Gesellschaft mbH der Frankfurter Volksbank Rhein/Main
Herr Helge May
004 ···
Nr. anzeigenPreise & Kosten
Provision für Käufer
5,95% inkl. MwSt.
Lage
Schlangenbad ist eine Gemeinde im Rheingau-Taunus-Kreis in Hessen westlich der Landeshauptstadt Wiesbaden. Sie liegt an der Bäderstraße Taunus und gilt als das älteste anerkannte Heilbad Hessens.
Der Ort grenzt im Norden an die Stadt Bad Schwalbach, im Osten an die Stadt Taunusstein und die Landeshauptstadt Wiesbaden...
Das Renditeobjekt
Kategorie
Mehrfamilienhaus
Baujahr
1975
Energie & Heizung
Warum sehe ich diese Anzeige? – Du siehst diese Anzeige basierend auf Ihrer Navigation auf unserer Website und den Suchkriterien, die du verwendet hast.
Energieausweistyp
Bedarfsausweis
Gebäudetyp
Wohngebäude
Baujahr laut Energieausweis
1975
Wesentliche Energieträger
GAS
Gültigkeit
bis 08.09.2032
Effizienzklasse
E
Endenergiebedarf
155,38 kWh/(m²·a)
Details
Objektbeschreibung
Attraktives Neunfamilienhaus mit großem Entwicklungspotenzial - Idyllisch gelegen in Schlangenbad
Inmitten der reizvollen Natur des Taunus, eingebettet in die grüne Hügellandschaft von Schlangenbad, befindet sich dieses charmante Neunfamilienhaus - ein seltenes Investmentobjekt mit außergewöhnlicher Lage und...
Ausstattung
Die Immobilie auf einen Blick:
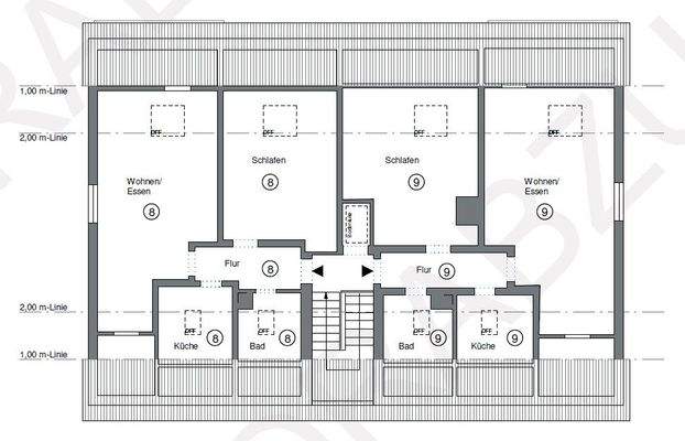
.9 Wohneinheiten verteilt auf mehrere Etagen (bereits nach WEG geteilt)
.Grundstück in traumhafter, grüner Lage
.Direkt am Bach gelegen - einzigartiges Naturidyll
.Solider Bestandsbau mit Entwicklungspotenzial
.Teilweise modernisierte Einheiten
.Stellplätze...
Preisinformation
5 Stellplätze
Soll-Mieteinnahmen pro Jahr: 70.000,00 EUR
Ist-Mieteinnahmen pro Jahr: 54.600,00 EUR
Weitere Informationen
Sonstiges
Gerne stehen wir Ihnen für ein Beratungs- und Besichtigungstermin zur Verfügung.
Sie möchten selbst eine Immobilie verkaufen?
Wir ermitteln einen seriösen und marktgerechten Wert Ihrer Immobilie. Mit einem individuell für Sie abgestimmten Vermarktungsplan optimieren wir die Verkaufschancen. Als...
Anbieter der Immobilie
Immobilien Gesellschaft mbH der Frankfurter Volksbank Rhein/Main
Seligenstädter Str. 52, 63179 Obertshausen

Online-ID: 2ns835b
Referenznummer: 11950
Finde Angebote wie dieses
Hier geht es zu unserem Impressum, den Allgemeinen Geschäftsbedingungen, den Hinweisen zum Datenschutz und nutzungsbasierter Online-Werbung.