
ohne-makler.net - Immobilien selbst vermarkten
Privat von Ingolf Hertlin
Kontaktiere den Anbieter schriftlich, es ist keine Telefonnummer hinterlegt.
Preise & Kosten
Provision für Käufer
provisionsfrei
Lage
Die Wohnungen zeichnen sich durch eine naturnahe, ruhige Wohnlage mit exklusiven Villen und Blick auf das Hermannsdenkmal aus. Auch das LWL Freilichtmuseum ist nur wenige Minuten entfernt.
Ganz besonders ist das familienfreundliche Wohnumfeld und die sehr gute Infrastruktur zu erwähnen. Die Buslinie 701 ist ca. 200 m...
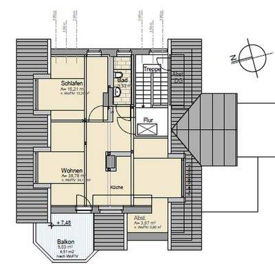
Die Wohnung
Bezug
sofort
Wohnanlage
Energie & Heizung
Warum sehe ich diese Anzeige? – Du siehst diese Anzeige basierend auf Ihrer Navigation auf unserer Website und den Suchkriterien, die du verwendet hast.
Energieausweistyp
Bedarfsausweis
Gebäudetyp
Wohngebäude
Effizienzklasse
B
Endenergiebedarf
58,00 kWh/(m²·a)
Weitere Energiedaten
Heizungsart
Fußbodenheizung, Luft-/Wasser-Wärmepumpe
Details
Objektbeschreibung
Willkommen in dieser kernsanierten Villa in Detmold im Villenviertel Friedrichshöhe im Ortsteil Heiligenkirchen! Hier sind vier komplett kernsanierte Eigentumswohnungen entstanden, die provisionsfrei von Privat zu verkaufen sind. Alle Einheiten bieten modernen Neubaukomfort.
Der bauliche Zustand des Hauses entspricht...
Ausstattung
Balkon, Garten, Keller, Duschbad, Barrierefrei, Fliesen
Bemerkungen:
Alle Wohnungen haben eine Fußbodenheizung und Multimediaanschlüsse in allen Räumen.
Preisinformation
4 Stellplätze, Kaufpreis je: 15.000,00 EUR
Weitere Informationen
Sonstiges
Heizungsart: Fußbodenheizung
Energieträger: Luft-/Wasserwärme
Privatverkauf - keine Makler!
Makleranfragen nicht erwünscht. Nach § 7 UWG sind unaufgeforderte Kontaktaufnahmen durch Makler ohne ausdrückliche Einwilligung des Empfängers verboten!
ohne-makler (OM) ist weder Anbieter noch...
Anbieter der Immobilie
ohne-makler.net - Immobilien selbst vermarkten
Humboldtstr. 25 A, 21509 Glinde
Privat von Ingolf Hertlin
Dein Ansprechpartner
Kontaktiere den Anbieter schriftlich, es ist keine Telefonnummer hinterlegt.
Online-ID: 2ns7j5y
Referenznummer: 416090
Finde Angebote wie dieses
Hier geht es zu unserem Impressum, den Allgemeinen Geschäftsbedingungen, den Hinweisen zum Datenschutz und nutzungsbasierter Online-Werbung.