

Lindemann Immobilien Hausverwaltung
Herr Martin Cordes
+49 ···
Nr. anzeigenPreise & Kosten
Kaution
2.670,00
Warum sehe ich diese Anzeige? – Du siehst diese Anzeige basierend auf Ihrer Navigation auf unserer Website und den Suchkriterien, die du verwendet hast.
Lage
Die Wohnung befindet sich in der Harburger Straße 41 in 21680 Stade, einer charmanten Stadt im Norden Deutschlands1. Stade ist bekannt für seine malerische Altstadt, die von Fachwerkhäusern und historischen Gebäuden geprägt ist2.
Die Harburger Straße liegt in einer zentralen und dennoch ruhigen Gegend von Stade. In der...
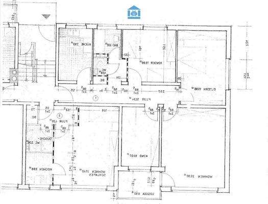
Die Wohnung
Wohnungslage
1. Geschoss
Bezug
16.05.2026
Wohnanlage
Energie & Heizung
Warum sehe ich diese Anzeige? – Du siehst diese Anzeige basierend auf Ihrer Navigation auf unserer Website und den Suchkriterien, die du verwendet hast.
Energieausweistyp
Bedarfsausweis
Gebäudetyp
Wohngebäude
Baujahr laut Energieausweis
2015
Wesentliche Energieträger
GAS
Gültigkeit
bis 17.11.2026
Effizienzklasse
E
Endenergiebedarf
136,10 kWh/(m²·a)
Details
Objektbeschreibung
Diese helle und durchdacht geschnittene Vier-Zimmer-Wohnung bietet viel Platz für Familien, Paare oder Wohnen und Arbeiten unter einem Dach.
Bereits beim Betreten überzeugt der großzügige Flur, von dem alle Räume separat erreichbar sind - eine praktische Aufteilung für den Alltag. Die Küche ist voll ausgestattet mit...
Ausstattung
- Vier-Zimmer-Wohnung in zentraler Lage in Stade
- Geräumiger Flur mit Zugang zu allen Zimmern
- Praktischer Einbauschrank im Flur (Staubsauger, Bügelbrett etc.)
- Separate Küche mit Einbauküche
- Backofen mit Ceranfeld
- Großer Kühlschrank mit Gefrierfach
- Platz für einen Esstisch in der Küche
-...
Preisinformation
1 Stellplatz
Weitere Informationen
Sonstiges
Es liegt ein Energiebedarfsausweis vor.
Dieser ist gültig bis 17.11.2026.
Endenergiebedarf beträgt 136.10 kwh/(m²*a).
Wesentlicher Energieträger der Heizung ist Gas.
Das Baujahr des Objekts lt. Energieausweis ist 2015.
Die Energieeffizienzklasse ist E.
Interessiert? Das vollständige Exposé...
Anbieter der Immobilie
Lindemann Immobilien Hausverwaltung
Am Elbdeich 28, 21635 Jork

Online-ID: 2ns5j5k
Referenznummer: 26 M 008
Finde Angebote wie dieses
Hier geht es zu unserem Impressum, den Allgemeinen Geschäftsbedingungen, den Hinweisen zum Datenschutz und nutzungsbasierter Online-Werbung.