
IMS Immobilienmanagement GmbH
Herr Emanuel Wagner
+49 ···
Nr. anzeigenPreise & Kosten
Provision für Käufer
3,57%
Lage
Die Gewerbeimmobilie befindet sich im Bundesland Saarland, im Landkreis Neunkirchen, in der Gemeinde Eppelborn mit rund 17.000 Einwohnern. Der Standort liegt im Ortsteil Eppelborn mit ca. 4.800 Einwohnern.
Großräumige Lage und Verkehrsanbindung
Die Immobilie verfügt über eine gute überregionale Anbindung. Die...
Das Renditeobjekt
Details
Objektbeschreibung
Objektbeschreibung
Bei dem Objekt handelt es sich um ein modernes Büro- und Geschäftshaus, das ausschließlich zu gewerblichen Zwecken genutzt wird. Der gewerbliche Nutzungsanteil beträgt rund 100 %. Das Gebäude wurde im Jahr 2002 errichtet und präsentiert sich in einem gepflegten Gesamtzustand.
Das Objekt ist...
Ausstattung
Gewerbeimmobilie in Eppelborn - Vier Büroeinheiten
Objektbeschreibung:
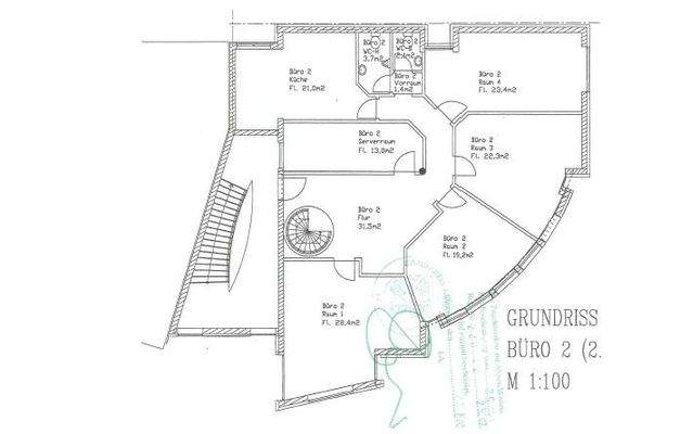
Die Immobilie ist ein modernes Büro- und Geschäftshaus mit vier Gewerbeeinheiten, ausschließlich zu gewerblichen Zwecken genutzt (ca. 100 %). Das viergeschossige Gebäude (EG bis DG/3. OG, teilunterkellert) wurde 2002 errichtet und fortlaufend...
Preisinformation
18 Stellplätze
Weitere Informationen
Sonstiges
Parkdeck - im Erbbaurecht mitverkauft
Zum Objekt gehört ein offenes Parkdeck. Das Parkdeck wurde 2002/2003 errichtet und befindet sich in unmittelbarer Nähe bzw. direkter Zuordnung zum Büro- und Geschäftshaus.
Bauweise und technische Angaben
Bauart: Stahl- und Stahlbetonskelettbauweise mit...
Dokumente
Anbieter der Immobilie
IMS Immobilienmanagement GmbH
Höppesbüsch 35, 66571 Dirmingen
Online-ID: 2ns2x53
Referenznummer: EPP-GWO-234#Xsv6qH
Finde Angebote wie dieses
Hier geht es zu unserem Impressum, den Allgemeinen Geschäftsbedingungen, den Hinweisen zum Datenschutz und nutzungsbasierter Online-Werbung.