

Gewerbeimmobilien Mergenthaler GmbH
Firma Gewerbeimmobilien Mergenthaler GmbH
071 ···
Nr. anzeigenPreise & Kosten
Provision für Mieter
2,38 Netto-Monatskaltmieten inkl. MwSt.
Warum sehe ich diese Anzeige? – Du siehst diese Anzeige basierend auf Ihrer Navigation auf unserer Website und den Suchkriterien, die du verwendet hast.
Lage
Weilimdorf (bis 1955 Weil im Dorf) ist ein Stadtbezirk im Nordwesten von Stuttgart. Er grenzt an die Stuttgarter Stadtbezirke Zuffenhausen, Feuerbach und Stuttgart-West sowie die Städte Gerlingen, Ditzingen und Korntal-Münchingen (alle drei Landkreis Ludwigsburg).
Büro-/Praxisfläche
Kategorie
Bürofläche
Baujahr
1999
Bezug
ab sofort
Geschoss
1. Geschoss
Energie & Heizung
Warum sehe ich diese Anzeige? – Du siehst diese Anzeige basierend auf Ihrer Navigation auf unserer Website und den Suchkriterien, die du verwendet hast.
Wärme
Strom
Energieausweistyp
Bedarfsausweis
Gebäudetyp
Nicht-Wohngebäude
Baujahr laut Energieausweis
1999
Wesentliche Energieträger
Erdgas leicht
Gültigkeit
bis 04.10.2034
Endenergiebedarf (Wärme)
131,00 kWh/(m²·a)
Endenergiebedarf (Strom)
25,00 kWh/(m²·a)
Details
Objektbeschreibung
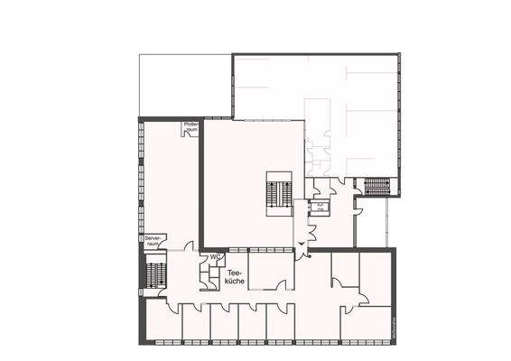
Helle Büroflächen durch Vollverglasung in einem Bürokomplex mit Teeküche, Aufenthaltsraum sowie sanitären Anlagen.
Mietkonditionen
Bürofläche ca. 500 x € 12,75 = € 6.375,00
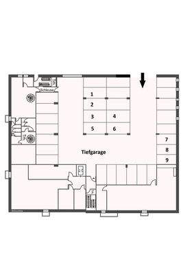
7 Stellplätze im Freien à € 55,00 = € 385,00
9 TG-Stellplätze à € 85,00 = € 765,00
Nebenkostenvorauszahlung € 1.800,00
zzgl...
Ausstattung
- komplette Vollverglasung
- Aufzug
- Schallschutzelemente an den Decken
- Fenster Kunststoff isolierverglast (aus 1996)
- Bodenbelag: Teppichboden
- Wände: Feinputz
- Verkabelung über Bodentanks
- Räume teilweise klimatisiert
- bei Bedarf können 4 Ladepunkte mit 11 kw-Säulen eingerichtet...
Preisinformation
Nettokaltmiete: 6.375,00 EUR
Weitere Informationen
Sonstiges
Es liegt ein Energiebedarfsausweis vor.
Dieser ist gültig bis 4.10.2034.
Endenergiebedarf beträgt 203.00 kwh/(m²*a).
Wesentlicher Energieträger der Heizung ist Erdgas leicht.
Das Baujahr des Objekts lt. Energieausweis ist 1999.
Geschäfts- und Provisionsvereinbarungen
Sämtliche Angaben...
Anbieter der Immobilie

Gewerbeimmobilien Mergenthaler GmbH
Bahnhofstraße 4, 71332 Waiblingen

Online-ID: 2ns2f5a
Referenznummer: G-9254
Finde Angebote wie dieses
Hier geht es zu unserem Impressum, den Allgemeinen Geschäftsbedingungen, den Hinweisen zum Datenschutz und nutzungsbasierter Online-Werbung.