

Grupo Noruego Costa Blanca S.L.
Frau Elvira Wabnik
+49 ···
Nr. anzeigenPreise & Kosten
Provision für Käufer
provisionsfrei
Das Haus
Kategorie
Villa
Baujahr
2026
Details
Objektbeschreibung
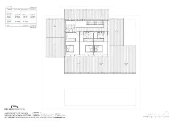
Neu gebaute Villa in Teulada mit Bergblick
Im Erdgeschoss finden wir einen großen Wohn-Essbereich und offene Küche, Hauptschlafzimmer mit begehbarem Kleiderschrank und Bad, vordere Terrasse mit Zugang zum Pool.
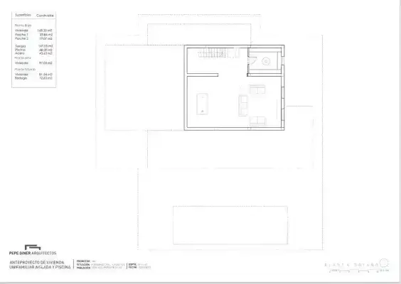
Im ersten Stock befinden sich 3 Schlafzimmer mit Einbauschränken, 3 Bäder en suite.
Wie auch...
Anbieter der Immobilie
Grupo Noruego Costa Blanca S.L.
Calle Escorpiones, CC Punta Marina, Local 0.10, 03185 TORREVIEJA, ALICANTE

Online-ID: 2nrza5c
Referenznummer: N6425-10
Finde Angebote wie dieses
Hier geht es zu unserem Impressum, den Allgemeinen Geschäftsbedingungen, den Hinweisen zum Datenschutz und nutzungsbasierter Online-Werbung.