
MHW Haas Wohnbau GmbH
Frau Yvonne Geyer-Haas
091 ···
Nr. anzeigenPreise & Kosten
Provision für Käufer
provisionsfrei
Lage
Hier wohnen Sie ruhig und dennoch wunderbar angebunden. Der Bus ist in wenigen Minuten zu Fuß erreichbar, genauso wie der Bahnhof, ideal für den Weg zur Arbeit oder einen Ausflug in die Stadt. Die Autobahn ist nur wenige Fahrminuten entfernt und bringt Sie schnell nach Nürnberg oder Bamberg. Einkaufsmöglichkeiten, Bäcker und...
Das Haus
Geschosse
2 Geschosse
Baujahr
Neubau
Energie & Heizung
Warum sehe ich diese Anzeige? – Du siehst diese Anzeige basierend auf Ihrer Navigation auf unserer Website und den Suchkriterien, die du verwendet hast.
Weitere Energiedaten
Haustyp
KfW 55, Massivhaus
Energieträger
Elektro
Heizungsart
Fußbodenheizung, Luft-/Wasser-Wärmepumpe
Details
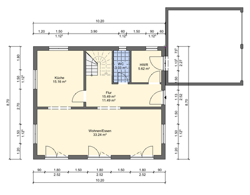
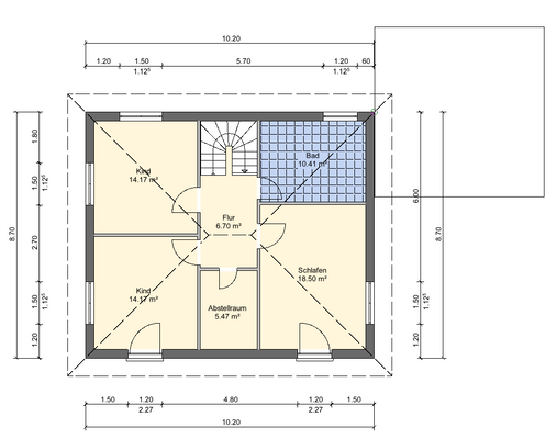
Objektbeschreibung
Auf diesem Grundstück in Erlangen errichten wir für Sie dieses Einfamilienhaus.
Der Kaufpreis beinhaltet das Grundstücks und das schlüsselfertige Haus mit Garage.
Zum Angebot steht diese Stadtvilla, ein modernes Einfamilienhaus mit klassischer Stadtvilla-Architektur, zwei Vollgeschossen und klarer...
Weitere Informationen
Kontakt
Haben wir Ihr Interesse geweckt? Rufen Sie uns unter 09101 - 99 65 0 an oder füllen Sie das Kontaktformular aus. Wir freuen uns auf Sie!
Kommen Sie gerne vorbei!
Im Gewerbepark 20 - 91093 Heßdorf
Mo - Do 8:00 - 17:00
Fr 9:00 - 13:00
Sa - So 11:00 -...
Anbieter der Immobilie
MHW Haas Wohnbau GmbH
Im Gewerbepark 20, 91093 Heßdorf
Online-ID: 2nrw45v
Finde Angebote wie dieses
Hier geht es zu unserem Impressum, den Allgemeinen Geschäftsbedingungen, den Hinweisen zum Datenschutz und nutzungsbasierter Online-Werbung.