
HATESUR IMMOBILIEN & Verwaltungsgesellschaft mbH
Herr Rüdiger Hatesur
0 5 ···
Nr. anzeigenPreise & Kosten
Provision für Käufer
7,14% inkl. MwSt.
Lage
Die Immobilie befindet sich in zentraler Lage im Herzen von Nienburg (Weser). Dieser Standort überzeugt durch seine direkte Nähe zur Fußgängerzone, zahlreichen Einkaufsmöglichkeiten, gastronomischen Angeboten sowie kulturellen Einrichtungen. Alles, was das städtische Leben ausmacht, liegt nur wenige Gehminuten...
Das Renditeobjekt
Kategorie
Wohn- und Geschäftshaus
Baujahr
1895
Energie & Heizung
Warum sehe ich diese Anzeige? – Du siehst diese Anzeige basierend auf Ihrer Navigation auf unserer Website und den Suchkriterien, die du verwendet hast.
Wärme
Energieausweistyp
Verbrauchsausweis
Gebäudetyp
Nicht-Wohngebäude
Wesentliche Energieträger
GAS
Gültigkeit
bis 01.04.2034
Endenergieverbrauch (Wärme)
115,45 kWh/(m²·a)
Weitere Energiedaten
Energieträger
Gas
Heizungsart
Zentralheizung
Details
Objektbeschreibung
Zum Verkauf steht ein gepflegtes Mehrfamilienhaus mit insgesamt sechs Wohneinheiten und einer Gewerbefläche im Erdgeschoss. Das Gebäude wurde im Jahr 1895 errichtet und überzeugt durch seinen historischen Charme in Verbindung mit einer soliden Bausubstanz. In den Jahren 2010 bis 2016 wurde das Haus umfassend saniert und...
Preisinformation
Ist-Mieteinnahmen pro Jahr: 37.260,00 EUR
Weitere Informationen
Stichworte
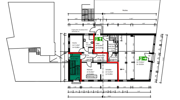
Wohnfläche: 302,85 m², Gesamtfläche: 427,85 m², vermietbare Fläche: 427,85 m², Bürofläche: 125,00 m², Anzahl der Wohneinheiten: 6, Anzahl der Gewerbeeinheiten: 1, 3 Etagen, modernisiert: 2015
Anbieter der Immobilie
HATESUR IMMOBILIEN & Verwaltungsgesellschaft mbH
Leinstraße 36, 31582 Nienburg (Weser)
Online-ID: 2nrvk5j
Referenznummer: HIG 495
Finde Angebote wie dieses
Hier geht es zu unserem Impressum, den Allgemeinen Geschäftsbedingungen, den Hinweisen zum Datenschutz und nutzungsbasierter Online-Werbung.