
Jens Finger Immobilienvermittlung
Herr/Frau Jens Finger
040 ···
Nr. anzeigenPreise & Kosten
Provision für Käufer
Provision in Höhe von 6 % einschl. MwSt. auf den Kaufpreis, bei einem Kaufpreis von € 295.000,00 mithin € 17.700,00, zahlbar von Käufer und Verkäufer je zur Hälfte, folglich jeweils € 8.850,00 (netto € 7.436,98 zzgl. 19 % MwSt. € 1.413,02).
Abschreibung/Anlage
als Kapitalanlage geeignet
Die Wohnung
Wohnungslage
Erdgeschoss
Bezug
sofort
Derzeitige Nutzung
vermietet, frei
Wohnanlage
Energie & Heizung
Warum sehe ich diese Anzeige? – Du siehst diese Anzeige basierend auf Ihrer Navigation auf unserer Website und den Suchkriterien, die du verwendet hast.
Energieausweistyp
Verbrauchsausweis
Gebäudetyp
Wohngebäude
Baujahr laut Energieausweis
1999
Wesentliche Energieträger
Gas
Gültigkeit
05.09.2018 bis 05.09.2028
Effizienzklasse
C
Endenergieverbrauch
87,00 kWh/(m²·a)
Weitere Energiedaten
Energieträger
Gas
Heizungsart
Zentralheizung
Details
Objektbeschreibung
• gut vermietete Wohnung,
• lichtdurchflutet,
• modern,
• ungewöhnlicher Grundriß,
• Maisonette über drei Halbetagen,
• Garten,
• Gartenterrasse
• Westbalkon,
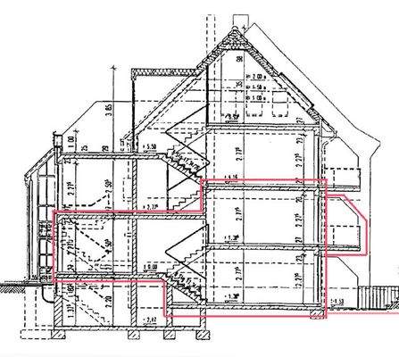
Das Haus Am Landpflegeheim 1a wurde im Jahr 1999 in konventioneller Bauweise mit Teilkeller, Betondecken und Satteldach errichtet. Es...
Ausstattung
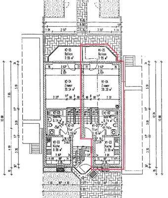
Hier zum Verkauf angeboten wird die untere rechte Wohnung, die sich über drei Halbetagen erstreckt, beginnend mit Flur, Küche und innenliegendem Vollbad im Hochparterre.
Eine halbe Treppe tiefer liegt das Wohnzimmer mit der Gartenterrasse und dem Garten.
Eine halbe Treppe höher befindet das Schlafzimmer mit...
Anbieter der Immobilie
Jens Finger Immobilienvermittlung
Randstr. 1, 22525 Eimsbüttel
Online-ID: 2nrua57
Referenznummer: AL1a-2026
Finde Angebote wie dieses
Hier geht es zu unserem Impressum, den Allgemeinen Geschäftsbedingungen, den Hinweisen zum Datenschutz und nutzungsbasierter Online-Werbung.