
Popp Immobilien GmbH & Co. KG
Herr Stephan Sachsenhauser
094 ···
Nr. anzeigenPreise & Kosten
Provision für Käufer
provisionsfrei
Lage
Das im Landkreis von Regensburg gelegene Eilsbrunn überzeugt durch seinen Wohn- und Freizeitwert. Der Nachbarort Sinzing mit seinen Einkaufsmöglichkeiten wie z.B. Edeka, Netto und Norma, zusätzlichen Dienstleistern, Ärzten und einer Grundschule ist in 5 Minuten mit dem Auto erreichbar.
Die Autobahn A3 in Richtung...
Das Haus
Kategorie
Doppelhaushälfte
Baujahr
1962
Bezug
sofort
Energie & Heizung
Warum sehe ich diese Anzeige? – Du siehst diese Anzeige basierend auf Ihrer Navigation auf unserer Website und den Suchkriterien, die du verwendet hast.
Weitere Energiedaten
Energieträger
Gas
Heizungsart
Ofen, offener Kamin, Zentralheizung
Details
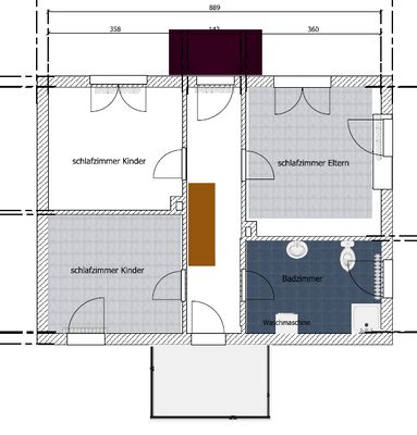
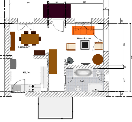
Objektbeschreibung
Nutzen Sie die Gelegenheit eine Doppelhaushälfte mit großem Garten in einer ruhigen Lage in Eilsbrunn zu erwerben.
Das Erdgeschoss ist aufgeteilt in ein großzügiges Wohn/Esszimmer mit offener Küche und einer hellen Fensterfront mit Zugang zur Südterrasse in den Garten. Hier können Sie den ganzen Tag bis zum...
Weitere Informationen
Heizungsart:
Heizkoerper
Anbieter der Immobilie
Popp Immobilien GmbH & Co. KG
Hans-Böckler-Str. 7 a, 93142 Maxhütte-Haidhof
Online-ID: 2nru55a
Finde Angebote wie dieses
Hier geht es zu unserem Impressum, den Allgemeinen Geschäftsbedingungen, den Hinweisen zum Datenschutz und nutzungsbasierter Online-Werbung.