
APM Kleppel Immobilien und Verwaltung
Herr Norman Scholz
037 ···
Nr. anzeigenPreise & Kosten
Provision für Käufer
4,76% min. 3.570€ incl. MwSt.
Lage
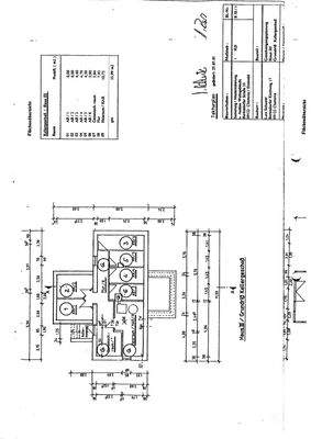
Die Wohnanlage in der Berbisdorfer Straße 35 in Chemnitz-Einsiedel präsentiert sich insgesamt in einem äußerst gepflegten und ansprechenden Zustand. Die Wohnungen 1-3 befinden sich gemeinsam in einem Mehrfamilienhaus, das sich in einem guten bis sehr guten Pflegezustand befindet. Sowohl das Treppenhaus als auch der...
Die Wohnung
Bezug
sofort
Derzeitige Nutzung
vermietet
Wohnanlage
Energie & Heizung
Warum sehe ich diese Anzeige? – Du siehst diese Anzeige basierend auf Ihrer Navigation auf unserer Website und den Suchkriterien, die du verwendet hast.
Weitere Energiedaten
Energieträger
Gas
Heizungsart
Zentralheizung
Details
Objektbeschreibung
Die Wohnanlage in der Berbisdorfer Straße 35 in Chemnitz-Einsiedel präsentiert sich insgesamt in einem äußerst gepflegten und ansprechenden Zustand. Die Wohnungen 1-3 befinden sich gemeinsam in einem Mehrfamilienhaus, das sich in einem guten bis sehr guten Pflegezustand befindet. Sowohl das Treppenhaus als auch der...
Ausstattung
Die insgesamt fünf Wohneinheiten überzeugen durch eine solide, vermietungsfreundliche Ausstattung sowie durchdachte Grundrisse mit attraktiven Außenflächen.
Die Wohnungen 1-3 befinden sich in einem gepflegten Mehrfamilienhaus. Wohnung 1 verfügt über eine Terrasse, während die Wohnungen 2 und 3 jeweils mit einem Balkon...
Preisinformation
8 Stellplätze
Weitere Informationen
Sonstiges
Alle Angaben im Exposé beziehen sich auf die uns vorliegenden Pläne, Unterlagen sowie die Aussagen des Eigentümers. Für Richtigkeit, Irrtümer und Änderungen der Angaben übernehmen wir keine Haftung.
Stichworte
Stellplatz vorhanden, Nutzfläche: 497,63 m², Anzahl der Schlafzimmer: 12, Anzahl der...
Dokumente
Anbieter der Immobilie
APM Kleppel Immobilien und Verwaltung
Clausstraße 76-80, 09126 Chemnitz
Online-ID: 2nrtr5t
Referenznummer: 35BS - Paket
Finde Angebote wie dieses
Hier geht es zu unserem Impressum, den Allgemeinen Geschäftsbedingungen, den Hinweisen zum Datenschutz und nutzungsbasierter Online-Werbung.