

KHC Bauträger GmbH
Frau Janet Schrepel
037 ···
Nr. anzeigenPreise & Kosten
Provision für Käufer
provisionsfrei
Lage
Das schöne Grundstück befindet sich in einer familiären und ruhigen Wohnsiedlung in Stollberg.
Das Haus
Kategorie
Einfamilienhaus
Baujahr
2026
Energie & Heizung
Warum sehe ich diese Anzeige? – Du siehst diese Anzeige basierend auf Ihrer Navigation auf unserer Website und den Suchkriterien, die du verwendet hast.
Energieausweistyp
Bedarfsausweis
Gebäudetyp
Wohngebäude
Baujahr laut Energieausweis
2026
Wesentliche Energieträger
Strom
Gültigkeit
seit 04.01.2016
Effizienzklasse
A+
Endenergiebedarf
19,56 kWh/(m²·a)
Weitere Energiedaten
Energieträger
Elektro
Heizungsart
Fußbodenheizung, Zentralheizung
Details
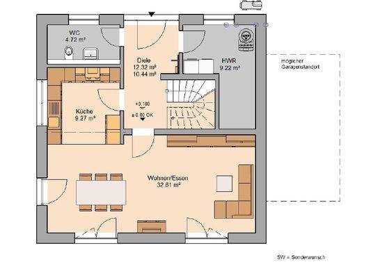
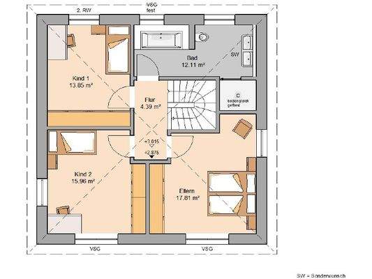
Objektbeschreibung
Von der Diele der Stadtvilla Pura aus erreichen Sie den Hauswirtschaftsraum, das praktische WC sowie die Küche und das großzügige Wohn- und Esszimmer. Die Stadtvilla Pura bietet sowohl im Erd- als auch im Obergeschoss zur Gartenseite hin bodentiefe Fenster. Über eine u-förmige Treppe gelangen Sie ins Obergeschoss. Ein...
Ausstattung
4 Zimmer, offene Küche, Diele, WC, Flur, Bad, Hauswirtschaftsraum
Das gezeigte Traumhaus im Überblick:
+ Schlüsselfertiges Massivhaus im Sinne der Ausstattungsbeschreibung "Easy"
+ Inklusive Bodenplatte
Beste Markenausstattung in jedem Kern-Haus:
+ Zimmermannsmäßiger Dachstuhl aus...
Weitere Informationen
Sonstiges
Kern-Haus
Kern-Haus baut individuelle und massive Architektenhäuser zu einem attraktiven Preis-Leistungs-Verhältnis - und das bereits mit einer Erfahrung seit 1980. Bei Kern-Haus erhalten Sie unter anderem 10 Jahre Gewährleistung auf die wesentlichen Bauleistungen, bis zu 24 Monate Preissicherheit sowie...
Anbieter der Immobilie

Online-ID: 2nrsu5h
Referenznummer: KH 89_08
Finde Angebote wie dieses
Hier geht es zu unserem Impressum, den Allgemeinen Geschäftsbedingungen, den Hinweisen zum Datenschutz und nutzungsbasierter Online-Werbung.