
ohne-makler.net - Immobilien selbst vermarkten
Privat vom Eigentümer
Kontaktiere den Anbieter schriftlich, es ist keine Telefonnummer hinterlegt.
Preise & Kosten
Kaution
1.467,00
Warum sehe ich diese Anzeige? – Du siehst diese Anzeige basierend auf Ihrer Navigation auf unserer Website und den Suchkriterien, die du verwendet hast.
Lage
Zu Fuß:
3 min - Kindertagesstätte
5 min - Sporthalle & Sportplatz
6 min - Piratenspielplatz
6 min - Park
8 min - Gemeinschaftsschule Elbschule
20 min - Supermarkt & Besorgungen -> 5 min mit Fahrrad
22 min - Bahnhof -> 5 min mit Fahrrad
22 min - Klinikum Glückstadt -> 6 min mit...
Die Wohnung
Wohnungslage
Erdgeschoss
Bezug
sofort
Wohnanlage
Energie & Heizung
Warum sehe ich diese Anzeige? – Du siehst diese Anzeige basierend auf Ihrer Navigation auf unserer Website und den Suchkriterien, die du verwendet hast.
Energieausweistyp
Verbrauchsausweis
Gebäudetyp
Wohngebäude
Effizienzklasse
E
Endenergieverbrauch
143,00 kWh/(m²·a)
Weitere Energiedaten
Energieträger
Gas
Heizungsart
Etagenheizung
Details
Objektbeschreibung
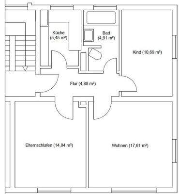
Diese 3-Zimmer-Wohnung besticht durch ihren perfekten Grundriss: Alle Räume sind direkt vom Flur aus erreichbar - ideal für ein geordnetes, angenehmes Wohngefühl. Die Wohnung verfügt über Zimmer zur Vorder- und Rückseite des Hauses, was für ausgewogene Lichtverhältnisse und flexible Nutzungsmöglichkeiten sorgt. Die Wohnung...
Ausstattung
Garten, Duschbad, Einbauküche, Laminat, Fliesen
Bemerkungen:
wird renoviert - inkl. Vollbad und Küche
Weiße Wände, Fenster, frisch gestrichen - Einzugsbereit & hell
Perfekter, effizienter Schnitt - Optimal genutzt
Bad mit Fenster - Licht und frische Luft, statt Gerüche
Wohnzimmer...
Preisinformation
Nettokaltmiete: 509,00 EUR
Weitere Informationen
Sonstiges
Heizungsart: Etagenheizung
Energieträger: Gas
Wir unterstützen die Bewerbung von Bedarfsgemeinschaften und Geflüchteten ab 3 Personen, persönliche Eignung vorausgesetzt. Kleinere Gemeinschaften scheiden leider aus.
Vermietung erfolgt direkt vom Eigentümer, kein Makler. Bitte schauen Sie sich die...
Anbieter der Immobilie
ohne-makler.net - Immobilien selbst vermarkten
Humboldtstr. 25 A, 21509 Glinde
Privat vom Eigentümer
Dein Ansprechpartner
Kontaktiere den Anbieter schriftlich, es ist keine Telefonnummer hinterlegt.
Online-ID: 2nrq85j
Referenznummer: 370770
Finde Angebote wie dieses
Hier geht es zu unserem Impressum, den Allgemeinen Geschäftsbedingungen, den Hinweisen zum Datenschutz und nutzungsbasierter Online-Werbung.