

Christiana Baur Immobilien
Herr Daniel Lontschar
+49 ···
Nr. anzeigenPreise & Kosten
Provision für Käufer
3,57% inkl. der gesetzlichen Mehrwertsteuer
Zuzüglich zum Kaufpreis sind folgende Nebenkosten vom Käufer zu entrichten: Grunderwerbsteuer (5%), Notargebühren (ca. 2%) und Maklergebühren (3,57% inkl. der gesetzlichen Mehrwertsteuer).
Lage
Das 1988 erbaute Wohn- und Geschäftshaus mit momentan 4 Wohnungen und 3 Gewerbeeinheiten, steht mitten im Zentrum von Wehingen.
Wehingen ist eine Gemeinde im Norden des Landkreises Tuttlingen in Baden-Württemberg und gehört zum Naturraum Hohe Schwabenalb auf der Schwäbischen Alb. Zusammen mit dem Nachbarort Gosheim...
Das Renditeobjekt
Kategorie
Wohn- und Geschäftshaus
Baujahr
1988
Frei ab
vermietet
Energie & Heizung
Warum sehe ich diese Anzeige? – Du siehst diese Anzeige basierend auf Ihrer Navigation auf unserer Website und den Suchkriterien, die du verwendet hast.
Wärme
Energieausweistyp
Bedarfsausweis
Gebäudetyp
Nicht-Wohngebäude
Wesentliche Energieträger
Gas
Gültigkeit
bis 24.11.2033
Endenergiebedarf (Wärme)
140,49 kWh/(m²·a)
Weitere Energiedaten
Energieträger
Gas
Details
Objektbeschreibung
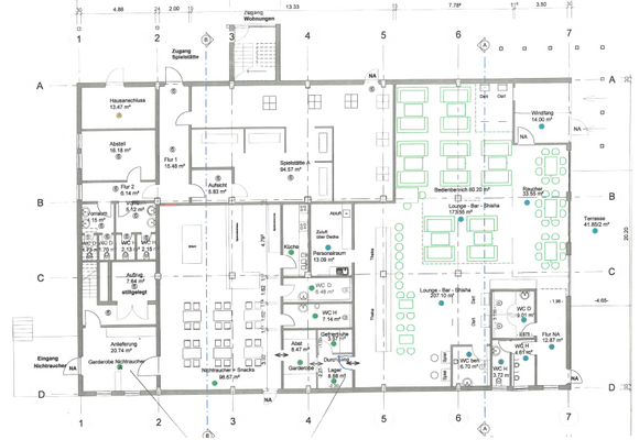
Es sind 3 Gewerbeeinheiten im Erdgeschoss, diese sind alle gut vermietet.
- Einheit 1: Spielhalle mit ca. 177 m²
- Einheit 2: Pizzeria mit ca. 162 m²
- Einheit 3: Pizzeria mit ca. 292 m²
Alle 3 Gewerbeeinheiten laufen über eine Gas-Zentralheizung. In allen Einheiten sind Kunden-WC´s vorhanden...
Ausstattung
Das Wohn- und Geschäftshaus wurde immer sehr gepflegt und ist ausgestattet mit:
- Kunden-WC´s
- Einbauküchen
- 3 Gas-Zentralheizungen
- 34 Außenstellplätze
- Zentraler Lage
- guter Anbindung
- guter Vermietung
Preisinformation
34 Stellplätze
Nettorendite Ist in %: 6,91
Ist-Mieteinnahmen pro Jahr: 88.800,00 EUR
Weitere Informationen
Stichworte
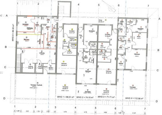
Wohnfläche: 500,00 m², Nutzfläche: 630,00 m², Gesamtfläche: 1.130,00 m², vermietbare Fläche: 1.130,00 m², Anzahl Balkone: 1, Anzahl der Wohneinheiten: 4, Anzahl der Gewerbeeinheiten: 3
Anbieter der Immobilie

Online-ID: 2nrps5g
Referenznummer: 1834
Finde Angebote wie dieses
Hier geht es zu unserem Impressum, den Allgemeinen Geschäftsbedingungen, den Hinweisen zum Datenschutz und nutzungsbasierter Online-Werbung.