

Baerz & Co
Frau Chantal Cunningham
+31 ···
Nr. anzeigenPreise & Kosten
Provision für Käufer
Bitte beachte, das Angebot kann bei Vertragsabschluss die Zahlung einer Provision beinhalten. Weitere Informationen erhältst Du vom Anbieter.
Das Haus
Kategorie
Bauernhaus
Baujahr
1910
Details
Objektbeschreibung
in a quiet street on the outskirts of riethoven, on a magnificent plot of 6,755 m², lies this beautiful old-style renovated farmhouse with a thatched roof. the property has been tastefully renovated and features a large, detached guest house, a spacious outbuilding with a relaxation room and fitness room/gym, a spacious...
Weitere Informationen
Stichworte
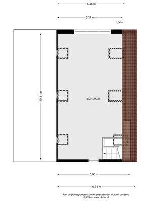
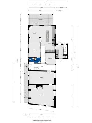
Sonstige Fläche: 60,00 m², Anzahl der Schlafzimmer: 4, Anzahl der Badezimmer: 2, Kubatur: 2.016,00 m³, Bundesland: noord-brabant, 3 Etagen
Anbieter der Immobilie

Online-ID: 2nrmx5g
Referenznummer: 47045
Finde Angebote wie dieses
Hier geht es zu unserem Impressum, den Allgemeinen Geschäftsbedingungen, den Hinweisen zum Datenschutz und nutzungsbasierter Online-Werbung.