
Immotreff
Herr Karlheinz Radschinsky
004 ···
Nr. anzeigenPreise & Kosten
Provision für Käufer
3 % zzgl. MwSt.
Lage
Mittelbach ist eine äußerst beliebte Wohnlage in Chemnitz, die eine ruhige Umgebung mit einer optimalen Verkehrsanbindung kombiniert. Sie profitieren von der Nähe zum Stadtzentrum von Chemnitz sowie der perfekten Anbindung an das Autobahnkreuz Chemnitz-Süd, was Ihnen eine einfache und schnelle Erreichbarkeit aller wichtigen...
Die Wohnung
Wohnungslage
2. Geschoss
Derzeitige Nutzung
vermietet
Wohnanlage
Energie & Heizung
Warum sehe ich diese Anzeige? – Du siehst diese Anzeige basierend auf Ihrer Navigation auf unserer Website und den Suchkriterien, die du verwendet hast.
Energieausweistyp
Verbrauchsausweis
Gebäudetyp
Wohngebäude
Baujahr laut Energieausweis
1995
Wesentliche Energieträger
GAS
Gültigkeit
bis 17.02.2029
Effizienzklasse
D
Endenergieverbrauch
123,60 kWh/(m²·a)
Weitere Energiedaten
Energieträger
Gas
Heizungsart
Zentralheizung
Details
Objektbeschreibung
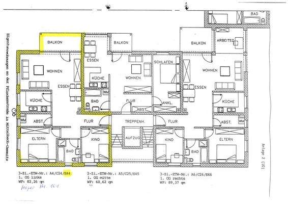
Diese charmante 3 Zimmerwohnung bietet Ihnen einen offenen und großzügigen Grundriss, der ein angenehmes Wohngefühl vermittelt.
Der südwestlich ausgerichtete Balkon lädt dazu ein, sonnige Stunden zu genießen und die Aussicht auf die ruhige Stadtrandlage zu schätzen.
Die Wohnräume sind mit modernem dunklem...
Ausstattung
- moderner, offen gestalteter Grundriss
- südwestlich ausgerichteter Balkon
- modernes Laminat in den Wohnräumen
- Bad mit Wanne und Dusche
- TG-Stellplatz
- abschließbares Kellerabteil
Weitere Informationen
Sonstiges
Um eine schnelle und unkomplizierte Terminvereinbarung zu treffen, können Sie uns gern unter folgenden Rufnummern von 8:00 Uhr bis 18:00 erreichen.
Tel.: 0371 / 31 31 51
Funk: 0172 / 79 88 500
Sie können natürlich auch auf unserer Homepage sich über andere Angebote...
Dokumente
Anbieter der Immobilie

Immotreff
Walter-Oertel-Straße 24, 09112 Chemnitz
Online-ID: 2nrmb5m
Referenznummer: IC148425
Finde Angebote wie dieses
Hier geht es zu unserem Impressum, den Allgemeinen Geschäftsbedingungen, den Hinweisen zum Datenschutz und nutzungsbasierter Online-Werbung.