

ORANGE Immobilienagentur
Herr Benedikt Kalin
004 ···
Nr. anzeigenPreise & Kosten
Provision für Käufer
3,57% inkl. gesetzlicher MwSt.
Lage
Passau ist eine Stadt in Niederbayern, Deutschland, die an der Grenze zu Österreich liegt. Der Auenweg 14 befindet sich in einem Wohnviertel namens "Grubweg", das östlich des Stadtzentrums liegt.
Von der Innenstadt aus ist der Auenweg etwa 3 Kilometer entfernt und kann bequem mit dem Auto oder öffentlichen...
Das Haus
Kategorie
Mehrfamilienhaus
Baujahr
1937
Bezug
sofort
Energie & Heizung
Warum sehe ich diese Anzeige? – Du siehst diese Anzeige basierend auf Ihrer Navigation auf unserer Website und den Suchkriterien, die du verwendet hast.
Energieausweistyp
Verbrauchsausweis
Gebäudetyp
Wohngebäude
Baujahr laut Energieausweis
1937
Wesentliche Energieträger
OEL
Gültigkeit
bis 13.10.2026
Effizienzklasse
F
Endenergieverbrauch
178,50 kWh/(m²·a)
Weitere Energiedaten
Haustyp
Massivhaus
Energieträger
Öl
Heizungsart
Zentralheizung
Details
Objektbeschreibung
Dieses Mehrfamilienhaus in Passau, Auenweg 14 bietet eine einzigartige Möglichkeit für Investoren ein ganzes Haus, mit hohem Potenzial zu realisieren. Das Objekt befindet sich in einer verkehrsgünstigen Wohngegend und bietet eine hervorragende Lage in unmittelbarer Nähe zu öffentlichen Verkehrsmitteln, Schulen und...
Ausstattung
* nicht sanierungsbedürftiges Dach
* einwandfreie Fenster
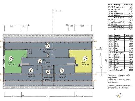
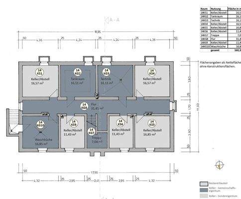
* 347 m² Wohnfläche Bestandswohnungen auf 4 Wohnungen
* derzeit ca. 2137 EUR Mieteinnahmen monatlich.
* 677 m² Grundstücksfläche
* Die Bestandswohnungen sind mit PVC und teilweise Holzdielen ausgestattet, die Bäder sind gefliest
* Öl-Heizung
Preisinformation
Soll-Mieteinnahmen pro Jahr: 50.040,00 EUR
Ist-Mieteinnahmen pro Jahr: 25.524,00 EUR
Weitere Informationen
Sonstiges
Gerne sind wir für weitere Fragen und Informationen unter Tel.: 0941- 698 498 80 erreichbar.
Bei Kauf/Miete verpflichtet sich der Käufer/Mieter an ORANGE Immobilienagentur OHG - Benedikt Kalin, selbst. Immobilienmakler, eine Maklerprovision in der angegebenen Höhe nach notariellem Kaufvertrag bzw. nach...
Anbieter der Immobilie
ORANGE Immobilienagentur
Kumpfmühler Str. 59, 93051 Regensburg

Online-ID: 2nrlf5v
Referenznummer: 287-KH-K.14
Finde Angebote wie dieses
Hier geht es zu unserem Impressum, den Allgemeinen Geschäftsbedingungen, den Hinweisen zum Datenschutz und nutzungsbasierter Online-Werbung.