
Marko Künne Immobilien
034 ···
Nr. anzeigenPreise & Kosten
Provision für Käufer
provisionsfrei
Lage
Taucha ist eine Kleinstadt im Nordwesten Sachsens, nordöstlich von Leipzig, an dessen Stadtgebiet es direkt angrenzt. Sie liegt in der Leipziger Tieflandbucht. Durch die Stadt fließt die Parthe, deren Flussaue ein ausgedehntes Landschaftsschutzgebiet um die Stadt bildet.
Einkaufsmöglichkeiten und andere Geschäfte des...
Die Wohnung
Kategorie
Maisonette
Wohnungslage
4. Geschoss
Bezug
nach Vereinbarung
Wohnanlage
Details
Objektbeschreibung
Bei dieser Immobilie handelt es sich um eine geräumige Maisonettewohnung im Stadtnah-gelegenen Merkwitz bei Taucha. Das Gebäude wurde 1860 erbaut, im Jahre 1999 vollsaniert und befindet sich in einem gepflegten Zustand.
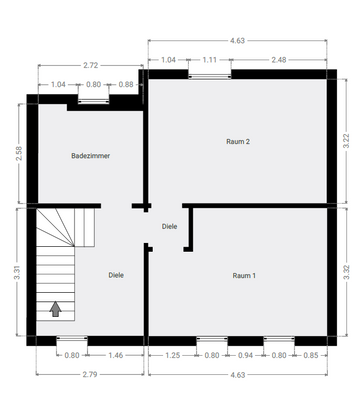
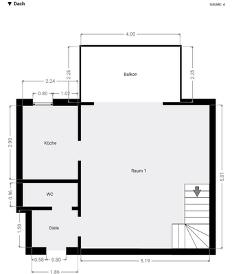
Die Wohneinheit verfügt über eine Wohnfläche von ca. 76,23 m², bestehend aus 3-Zimmern und einem...
Preisinformation
Nettorendite Soll in %: 5
Soll-Mieteinnahmen pro Jahr: 10.032,00 EUR
Weitere Informationen
Energiepass
Energieausweis wird bei Besichtigung vorgelegt.
Stichworte
Anzahl Balkone: 1, Bundesland: Sachsen, 5 Etagen, Wohnungsnr.: 14, modernisiert: 1999
Anbieter der Immobilie
Online-ID: 2nrlf5m
Referenznummer: 586975
Finde Angebote wie dieses
Hier geht es zu unserem Impressum, den Allgemeinen Geschäftsbedingungen, den Hinweisen zum Datenschutz und nutzungsbasierter Online-Werbung.