

Behnert Immobilien
Herr Michael Behnert
+49 ···
Nr. anzeigenPreise & Kosten
Provision für Käufer
provisionsfrei
Lage
Die projektierten Doppelhaushälften werden am Gertrudisplatz in Recklinghausen-Hillerheide errichtet.
Alle Geschäfte des täglichen Lebens, sowie Schulen, Kindergärten, etc. sind gut erreichbar. Ebenso öffentliche Verkehrsmittel und Autobahnanbindungen.
Recklinghausen ist eine charmante Stadt im Ruhrgebiet...
Das Haus
Kategorie
Doppelhaushälfte
Baujahr
2026
Energie & Heizung
Warum sehe ich diese Anzeige? – Du siehst diese Anzeige basierend auf Ihrer Navigation auf unserer Website und den Suchkriterien, die du verwendet hast.
Weitere Energiedaten
Haustyp
Massivhaus
Details
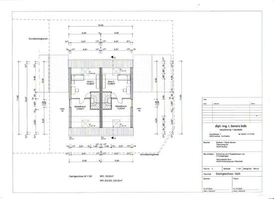
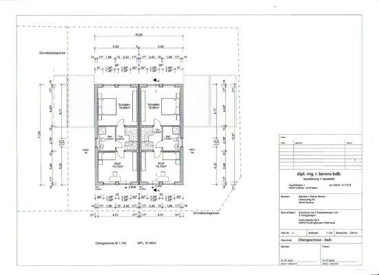
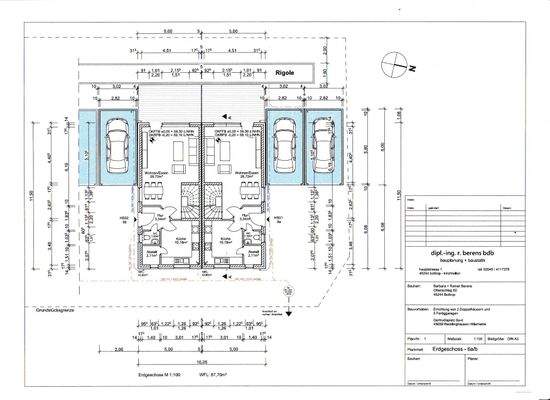
Objektbeschreibung
Errichtung von 4 projektierten Doppelhaushälften, 2,5-geschossige Bauweise, ca.117qm Wohnfläche, ab ca. 185qm Grundstück, Luftwärmepumpe, Fußbodenheizung, KFW 55,
Haus A - 416.000,--Euro, ca. 248qm Grundstück, keine zusätzliche Käuferprovision
Haus B - 396.000,--Euro, ca. ca. 185qm Grundstück, keine zusätzliche...
Ausstattung
* Traumhafte Südwestgrundstücke
* 4 Zimmer mit rund 117qm Wohnfläche
* Ausgebautes Dachgeschoss
* Großzügiger Wohn-/ Essbereich im Erdgeschoss
* Modernes Tageslichtbad plus Gäste-WC mit schöner Ausstattung
* Dreifachverglaste Kunststoff-Iso-Fenster
* Wertige Aluminium-Haustür mit Stoßgriff und...
Weitere Informationen
Stichworte
Anzahl der Schlafzimmer: 3, Anzahl der Badezimmer: 1, Anzahl der separaten WCs: 1, 2 Etagen
Dokumente
Anbieter der Immobilie
Behnert Immobilien
Halterner Strasse, 150, 150, 45657 Recklinghausen

Online-ID: 2nrkb5v
Referenznummer: MB126#t1PM9
Finde Angebote wie dieses
Hier geht es zu unserem Impressum, den Allgemeinen Geschäftsbedingungen, den Hinweisen zum Datenschutz und nutzungsbasierter Online-Werbung.