
Hechler & Twachtmann Immobilien GmbH
Frau Jasmin Grüneberg
004 ···
Nr. anzeigenPreise & Kosten
Kaution
2.200,00
Provision für Mieter
Im Erfolgsfall sind vom Vermieter 3,57 Monatskaltmieten inkl. MwSt. zu zahlen! zzgl. MwSt.
Warum sehe ich diese Anzeige? – Du siehst diese Anzeige basierend auf Ihrer Navigation auf unserer Website und den Suchkriterien, die du verwendet hast.
Lage
Die Büro- und Lagerfläche befinden sich im Bremer Stadtteil Osterfeuerberg und bieten eine optimale Verkehrsanbindung an die B6 sowie an die A27. Durch die zentrale Lage und die gute Infrastruktur haben sich hier einige Firmen, unter anderem Biomaris und Lidl, angesiedelt. Die Auf- und Abfahrt zum Zubringer Überseestadt, der...
Büro-/Praxisfläche
Kategorie
Bürofläche
Baujahr
1963
Bezug
sofort
Geschoss
Erdgeschoss
Energie & Heizung
Warum sehe ich diese Anzeige? – Du siehst diese Anzeige basierend auf Ihrer Navigation auf unserer Website und den Suchkriterien, die du verwendet hast.
Wärme
Strom
Energieausweistyp
Verbrauchsausweis
Gebäudetyp
Nicht-Wohngebäude
Baujahr laut Energieausweis
1963
Wesentliche Energieträger
OEL
Gültigkeit
bis 17.12.2025
Endenergieverbrauch (Wärme)
151,20 kWh/(m²·a)
Endenergieverbrauch (Strom)
1,50 kWh/(m²·a)
Details
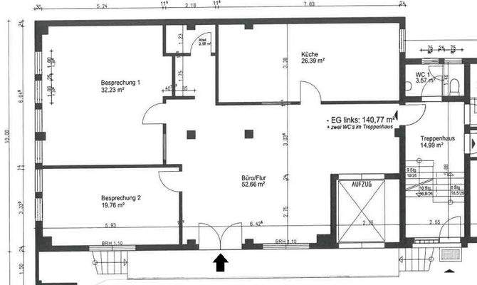
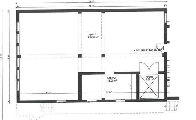
Objektbeschreibung
Im Bremer Ortsteil Osterfeuerberg, direkt an der Zufahrt zur Bundesstraße (B6), können wir Ihnen derzeit auf einem Gewerbegrundstück dieses ca. 140 m² große Büro mit ca. 141 m² Kellerlager anbieten. Das Gebäude wurde 1963 erbaut und bis heute ist es ein Ort, wo sich immer mehrere Gewerbetreibende unterschiedlicher...
Ausstattung
- 1 Großraumbüro/ Empfangsbereich
- 2 separate Büroräume
- 1 Archiv oder Serverraum
- Aufenthaltsraum mit Küchenzeile
- Nadelfilzteppich
- Rasterdecke mit integrierter Beleuchtung
- Kabelkanäle mit CAT 7 Datenkabel
- Internetverbindung bis 1.000 MBit/s
- WCs im Treppenhaus
- Außenrollläden
-...
Preisinformation
4 Stellplätze
Nettokaltmiete: 1.100,00 EUR
Weitere Informationen
Sonstiges
Es liegt ein Energieverbrauchsausweis vor.
Dieser ist gültig bis 17.12.2025.
Endenergieverbrauch für die Wärme beträgt 151.20 kwh/(m²*a).
Endenergieverbrauch für den Strom beträgt 1.50 kwh/(m²*a).
Wesentlicher Energieträger der Heizung ist Öl.
Die Fläche kann als Büro, Lager, und/oder Werkstatt...
Anbieter der Immobilie
Hechler & Twachtmann Immobilien GmbH
Blockener Straße 4, 28816 Stuhr
Online-ID: 2nrgj5p
Referenznummer: KO002M
Finde Angebote wie dieses
Hier geht es zu unserem Impressum, den Allgemeinen Geschäftsbedingungen, den Hinweisen zum Datenschutz und nutzungsbasierter Online-Werbung.