

KHC Bauträger GmbH
Frau Janet Schrepel
037 ···
Nr. anzeigenPreise & Kosten
Provision für Käufer
provisionsfrei
Lage
Das Grundstück befindet sich im östlichen Teil von Auerbach im Vogtland.
Das Haus
Kategorie
Einfamilienhaus
Baujahr
2025
Energie & Heizung
Warum sehe ich diese Anzeige? – Du siehst diese Anzeige basierend auf Ihrer Navigation auf unserer Website und den Suchkriterien, die du verwendet hast.
Energieausweistyp
Bedarfsausweis
Gebäudetyp
Wohngebäude
Baujahr laut Energieausweis
2025
Gültigkeit
seit 04.01.2016
Effizienzklasse
A
Weitere Energiedaten
Heizungsart
Fußbodenheizung, Zentralheizung
Details
Objektbeschreibung
Das Haus Loop ist ein Highlight für die ganze Familie. Es überzeugt mit sehr guter Wohnflächenausnutzung und einem schicken Design.
Große Fenster lassen viel Licht in den Innenraum, der großzügige Wohn- und Essbereich erhält eine markante Eckverglasung und bietet direkten Zugang in den eigenen Garten. An den...
Ausstattung
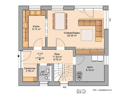
4 Zimmer, Küche, Diele, WC, Flur, Bad, Hauswirtschaftsraum, Garderobe
Das gezeigte Traumhaus im Überblick:
+ Schlüsselfertiges Massivhaus im Sinne der Ausstattungsbeschreibung "Easy"
+ Inklusive Bodenplatte
Beste Markenausstattung in jedem Kern-Haus:
+ Zimmermannsmäßiger Dachstuhl aus...
Weitere Informationen
Sonstiges
Kern-Haus
Kern-Haus baut individuelle und massive Architektenhäuser zu einem attraktiven Preis-Leistungs-Verhältnis - und das bereits mit einer Erfahrung seit 1980.
Maximale Sicherheit bei Kern-Haus:
+ 10 Jahre Gewährleistung auf die wesentlichen Bauleistungen
+ Bis zu 24 Monate...
Anbieter der Immobilie

Online-ID: 2nrfh58
Referenznummer: KH 16_33
Finde Angebote wie dieses
Hier geht es zu unserem Impressum, den Allgemeinen Geschäftsbedingungen, den Hinweisen zum Datenschutz und nutzungsbasierter Online-Werbung.