

TWE-Immobilien Thomas Erthle e. K.
Frau Samira Dardour
+49 ···
Nr. anzeigenPreise & Kosten
Provision für Käufer
3,57 % inkl. MwSt.
Lage
Die Lage in Essen (45144) ist ruhig, aber dennoch zentral: Schulen, Einkaufsmöglichkeiten, Ärzte sowie öffentliche Verkehrsmittel sind fußläufig erreichbar. Die Autobahnanbindungen an die A40, A42 und A52 ermöglichen zudem eine schnelle Verbindung in das gesamte Ruhrgebiet.
Das Haus
Kategorie
Mehrfamilienhaus
Baujahr
1960
Bezug
sofort
Derzeitige Nutzung
vermietet
Energie & Heizung
Warum sehe ich diese Anzeige? – Du siehst diese Anzeige basierend auf Ihrer Navigation auf unserer Website und den Suchkriterien, die du verwendet hast.
Energieausweistyp
Verbrauchsausweis
Gebäudetyp
Wohngebäude
Baujahr laut Energieausweis
1960
Wesentliche Energieträger
Gas,Solar
Gültigkeit
21.03.2025 bis 20.03.2035
Effizienzklasse
F
Endenergieverbrauch
189,50 kWh/(m²·a)
Weitere Energiedaten
Haustyp
Massivhaus
Energieträger
Gas, Solar
Heizungsart
Zentralheizung
Details
Objektbeschreibung
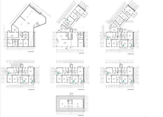
Dieses gepflegte Mehrfamilienhaus mit ergänzenden Gewerbeflächen aus dem Baujahr 1960 wurde in den Jahren 2015 bis 2023 umfassend saniert und befindet sich heute in einem modernen, sofort nutzbaren Zustand.
Das Gebäude erstreckt sich über fünf Etagen und umfasst insgesamt 15 Wohneinheiten, ergänzt durch eine...
Ausstattung
Ausstattung
- Vollständig saniert (2015-2023), modern ausgestattet
- 15 Wohneinheiten + Büro + Restaurant
- Balkone bei allen Wohnungen
- Tageslichtbäder mit Dusche, Fenster, Waschbecken und WC
- Restaurant mit Terrasse, voll ausgestattet
- Büro im Anbau, optional zu Wohnung umbaubar
- Aufzug für alle...
Preisinformation
9 Tiefgaragenstellplätze
Weitere Informationen
Sonstiges
Um eine schnelle Bearbeitung zu gewährleisten, übermitteln Sie uns bitte Ihre vollständigen Kontaktdaten mit Telefon-Nr. und E-Mail-Adresse.
Gerne vereinbaren wir einen Besichtigungstermin mit Ihnen und freuen uns über Ihre Kontaktaufnahme.
Wir vermitteln - mit...
Anbieter der Immobilie

Online-ID: 2nrf45g
Referenznummer: 3724 (1/3724)
Finde Angebote wie dieses
Hier geht es zu unserem Impressum, den Allgemeinen Geschäftsbedingungen, den Hinweisen zum Datenschutz und nutzungsbasierter Online-Werbung.