Zur Mühle Immobilien GmbH

Kontaktiere den Anbieter schriftlich, es ist keine Telefonnummer hinterlegt.

Moderne 2-Zimmer-Wohnung mit Terrasse in Wulfsen

€ 950
Kaltmiete zzgl. NK
73,72 m²
Wohnfläche ca.
2
Zimmer

Der Anbieter dieses Objekts hat gegenüber der AVIV Germany GmbH als Betreiber dieses Online-Marktplatzes erklärt, nicht als Unternehmer im Sinne des § 1 KSchG zu handeln. Die im Verbraucherschutzrecht der Union verankerten Verbraucherrechte (insbesondere Informationspflichten und Rücktritts- bzw. Widerrufsrechte) finden auf den Vertrag zwischen dem Anbieter des Objekts und Ihnen (dem Interessenten) keine Anwendung.

Gewerblicher Anbieter

Der Anbieter dieses Objekts hat gegenüber der AVIV Germany GmbH als Betreiber dieses Online-Marktplatzes erklärt, als Unternehmer im Sinne des § 1 KSchG zu handeln.

AdresseSchulstraße 48
21445 Wulfsen 
Auf Karte ansehen

Preise & Kosten

Kaltmiete € 950 Nebenkosten € 190 Heizkosten

in Nebenkosten enthalten

€ 65

Kaution

2850

Lage

Die Lage dieser Wohnung ist besonders vorteilhaft für Berufstätige und Familien, die eine ruhige Umgebung mit guter Anbindung suchen. Die Hamburger Innenstadt ist mit dem PKW in etwa 30-40 Minuten zu erreichen. In nur 650 Metern Entfernung befindet sich die nächstgelegene Bushaltestelle (Wulfsen, Birkenstraße) mit Anschluss...

Mehr anzeigen

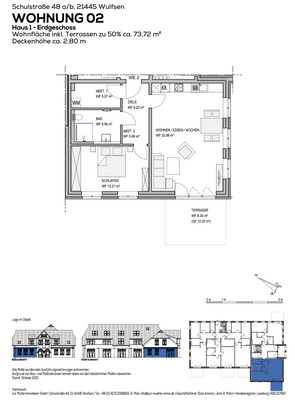
Die Wohnung

Kategorie

Terrassenwohnung

Wohnungslage

Erdgeschoss

Bezug

sofort

  • Bad mit Dusche
  • Terrasse, Gartenmitbenutzung
  • offene Küche
  • barrierefrei

Wohnanlage

  • Baujahr: 2022
  • Stellplatz

Energie & Heizung

Weitere Energiedaten

Haustyp

KfW 55

Heizungsart

Fußbodenheizung, Luft-/Wasser-Wärmepumpe, Zentralheizung

Details

Objektbeschreibung

Diese moderne Wohnung befindet sich in der Schulstraße in Wulfsen, einer charmanten Gegend, die die perfekte Kombination aus Ruhe und Nähe zu urbanen Annehmlichkeiten bietet. Die im Jahr 2022 erbaute Wohnung bietet eine großzügige Fläche von 73,72 m² mit zwei hellen Zimmern sowie einem modernen Badezimmer. Eine moderne...

Mehr anzeigen

Ausstattung

Die Wohnung bietet bemerkenswerte Merkmale, darunter ein modernes Badezimmer, eine Einbauküche und eine ansprechende Terrasse mit einer Fläche von 12 m², die ideal für entspannte Stunden im Freien ist. Ein Abstellraum innerhalb der Wohnung mit Waschmaschinenanschluss sowie eine moderne IT-Verkabelung runden das ansprechende...

Mehr anzeigen

Weitere Informationen

Sonstiges
Info: Anzahl Etagen: 1
Zusätzlich zu den bereits genannten Vorteilen bietet diese Wohnung eine einladende Atmosphäre, die durch die moderne Ausstattung unterstützt wird. Da Haustiere nach Absprache erlaubt sind, ist das Zuhause auch perfekt für Tierliebhaber. Zögern Sie nicht und vereinbaren Sie noch heute...

Mehr anzeigen

Dokumente

file_pdfExpose Schulstrasse48 WE2.pdfangle_rightfile_pdf267220 Schulstr. 48 Energieausweis 2022-09-08.pdfangle_right

Anbieter der Immobilie

Zur Mühle Immobilien GmbH

Schulstraße 44, 21445 Wulfsen

Kontaktiere den Anbieter schriftlich, es ist keine Telefonnummer hinterlegt.

Anbieter-Impressum

Online-ID: 2nrdb5s

Referenznummer: EG Whg. 2

Finde Angebote wie dieses

imageimageimage

Hier geht es zu unserem Impressum, den Allgemeinen Geschäftsbedingungen, den Hinweisen zum Datenschutz und nutzungsbasierter Online-Werbung.