

RE/MAX Immobilien-Pro Weinstadt
Frau Manuela Bauer
+49 ···
Nr. anzeigenPreise & Kosten
Provision für Käufer
3,57% inkl. gesetzl. MwSt
Lage
In zentralen Lage im Herzen von Weinstadt-Endersbach. Dieser privilegierte Standort bietet eine hervorragende Infrastruktur mit allen notwendigen Einrichtungen des täglichen Bedarfs in unmittelbarer Nähe. Einkaufsmöglichkeiten, Cafés und Restaurants sind bequem zu Fuß erreichbar, wodurch der Alltag besonders komfortabel...
Das Haus
Kategorie
Mehrfamilienhaus
Baujahr
1865
Energie & Heizung
Warum sehe ich diese Anzeige? – Du siehst diese Anzeige basierend auf Ihrer Navigation auf unserer Website und den Suchkriterien, die du verwendet hast.
Energieausweistyp
Bedarfsausweis
Gebäudetyp
Wohngebäude
Baujahr laut Energieausweis
1976
Wesentliche Energieträger
GAS
Gültigkeit
bis 11.02.2035
Effizienzklasse
H
Endenergiebedarf
324,00 kWh/(m²·a)
Weitere Energiedaten
Energieträger
Elektro, Gas
Heizungsart
Zentralheizung
Details
Objektbeschreibung
Willkommen in Weinstadt-Endersbach - einer der begehrtesten Lagen der Region.
Wir präsentieren Ihnen ein sanierungsbedürftiges Zweifamilienhaus aus dem Jahr 1865, das durch seine zentrale Lage und die Potenziale zur individuellen Gestaltung oder für einen Neubau besticht.
Das Haus wurde 1965 und 1976...
Ausstattung
Zweifamilienhaus mit 2 Wohnungen und einem Grundstück von ca. 764 m²
im Herzen von Weinstadt-Endersbach.
Das Haus ist nur noch im Erdgeschoss von 1 Person bewohnt.
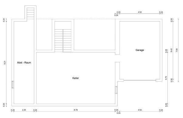
Untergeschoss ca.100 m² Nutzfläche
Garage, geräumiger Gewölbekeller, Abstellraum.
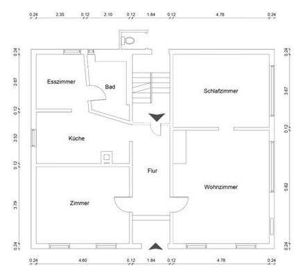
Erdgeschoss ca. 94 m² Wohnfläche
4 Zimmer zzgl. Küche...
Preisinformation
1 Garagenstellplatz
Weitere Informationen
Sonstiges
Rechtshinweis:
Da wir Objekte nicht selbst ermitteln, übernehmen wir hierfür keine Gewähr.
Sämtliche Angaben in diesem Exposé basieren auf Informationen, die uns vom Eigentümer/Vermieter genannt wurden. Wir bemühen uns, möglichst vollständige und richtige Angaben zu erhalten und weiterzuleiten. Eine...
Anbieter der Immobilie

Online-ID: 2nrbm5u
Referenznummer: 1025-14-MB
Finde Angebote wie dieses
Hier geht es zu unserem Impressum, den Allgemeinen Geschäftsbedingungen, den Hinweisen zum Datenschutz und nutzungsbasierter Online-Werbung.