
PRIOCASA Immobilien & Finanzservice
Frau Gabi Burghardt
+49 ···
Nr. anzeigenPreise & Kosten
Provision für Käufer
Keine Provision zzgl. MwSt.
Keine Provision
Lage
Das Anwesen liegt in Giesdorf, einer ruhigen Eifelgemeinde mit viel Natur, Weitblick und ländlicher Struktur. Die nächstgrößere Stadt Prüm ist in ca. 15 Autominuten erreichbar und bietet alle wichtigen Einrichtungen wie Ärzte, Schulen, Supermärkte, Restaurants und eine sehr gute Anbindung an die A60 und B51.
Die...
Das Haus
Kategorie
Bauernhaus
Baujahr
1850
Bezug
Nach Vereinbarung
Energie & Heizung
Warum sehe ich diese Anzeige? – Du siehst diese Anzeige basierend auf Ihrer Navigation auf unserer Website und den Suchkriterien, die du verwendet hast.
Energieausweistyp
Bedarfsausweis
Gebäudetyp
Wohngebäude
Wesentliche Energieträger
Holz
Gültigkeit
01.06.2023 bis 01.06.2033
Effizienzklasse
H
Endenergiebedarf
398,30 kWh/(m²·a)
Weitere Energiedaten
Energieträger
Holz
Heizungsart
offener Kamin
Details
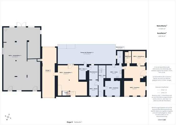
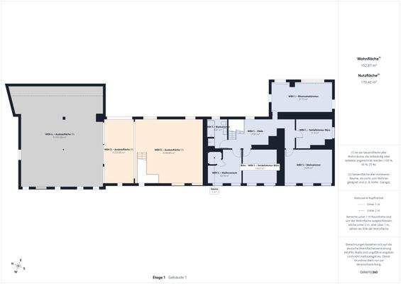
Objektbeschreibung
Willkommen in Giesdorf - hier wartet ein vielseitig nutzbares Bauernhaus/Landsitz mit weitreichendem Potenzial auf neue Eigentümer. Auf ca. 11.000?qm Grundstücksfläche bietet diese gepflegte Immobilie zwei abgeschlossene Wohneinheiten mit ca. 220?qm Wohnfläche sowie zahlreiche, teils ausgebaute Nebenflächen.
Ein ca...
Ausstattung
. Zwei abgeschlossene Wohneinheiten
. Ausgebauter ehemaliger Stall mit ca. 100?m² Fläche
. Ausbaufähiger Dachboden
. PV-Anlage mit Speicher (inklusive im Kaufpreis)
. Zwei Heizsysteme: Holz (Haupt), Öl (Backup)
. Wallbox-Anschluss vorhanden
. Garage mit Zugang zum Innenhof
. Potenzial für...
Preisinformation
10 Stellplätze
1 Garagenstellplatz
Weitere Informationen
Sonstiges
KEINE Provision
Da wir Objektangaben nicht selbst ermitteln, übernehmen wir hierfür keine Gewähr. Dieses Exposé ist nur für Sie persönlich bestimmt. Eine Weitergabe an Dritte ist an unsere ausdrückliche Zustimmung gebunden und unterbindet nicht unseren Provisionsanspruch bei Zustandekommen eines Vertrages...
Dokumente
Anbieter der Immobilie
PRIOCASA Immobilien & Finanzservice
Am Boden 3, 54634 Bitburg
Online-ID: 2nrbk5b
Referenznummer: 145#44MDhz
Finde Angebote wie dieses
Hier geht es zu unserem Impressum, den Allgemeinen Geschäftsbedingungen, den Hinweisen zum Datenschutz und nutzungsbasierter Online-Werbung.