

Werner Doll Immobilien
Frau Julia Denis
015 ···
Nr. anzeigenPreise & Kosten
Provision für Käufer
3,57 % inkl. MwSt.
Lage
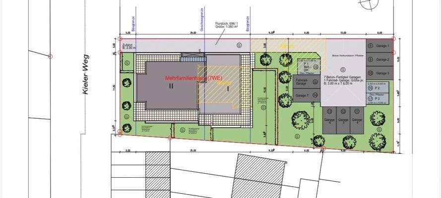
Das Neubauprojekt befindet sich im Kieler Weg 38 in 27751 Delmenhorst, im beliebten Stadtteil Stickgras. Die Lage zeichnet sich durch eine ruhige Wohnumgebung mit guter Infrastruktur aus.
Expose´ 7 ETW Kieler Weg 38 in …
Alle wichtigen Einrichtungen des täglichen Bedarfs befinden sich in unmittelbarer...
Die Wohnung
Kategorie
Penthouse
Wohnungslage
2. Geschoss
Wohnanlage
Energie & Heizung
Warum sehe ich diese Anzeige? – Du siehst diese Anzeige basierend auf Ihrer Navigation auf unserer Website und den Suchkriterien, die du verwendet hast.
Weitere Energiedaten
Haustyp
KfW 40
Heizungsart
Fußbodenheizung, Luft-/Wasser-Wärmepumpe, Zentralheizung
Details
Objektbeschreibung
Im attraktiven Stadtteil Stickgras in Delmenhorst entsteht ein modernes Mehrfamilienhaus mit 7 hochwertigen Eigentumswohnungen. Die Wohnungen bieten 2 bis 4 Zimmer und Wohnflächen von ca. 60 m² bis ca. 126 m² und überzeugen durch eine moderne Architektur, hochwertige Ausstattung sowie eine energieeffiziente Bauweise nach...
Ausstattung
Die Wohnungen werden mit einer hochwertigen und modernen Ausstattung realisiert:
Energieeffizienter Neubau nach KFN-40 Standard
Luft-Wasser-Wärmepumpe
Photovoltaikanlage
Fußbodenheizung in allen Wohnräumen
Dreifach verglaste Kunststofffenster
Elektrische Rollläden
Bodengleiche...
Weitere Informationen
Sonstiges
Bauzeit:
Geplante Bauzeit: ca. 18 Monate
Der Baubeginn erfolgt nach dem Verkauf von 50 %
der Wohnungen
Bei Interesse oder Fragen stehen wir Ihnen gerne zur Verfügung.
Wir freuen uns auf Ihre Anfrage!
Energiequelle:
Solarenergie
Anbieter der Immobilie
Werner Doll Immobilien
August-Wilhelm-Kühnholz-Str. 5, 26135 Oldenburg

Online-ID: 2nraw5r
Finde Angebote wie dieses
Hier geht es zu unserem Impressum, den Allgemeinen Geschäftsbedingungen, den Hinweisen zum Datenschutz und nutzungsbasierter Online-Werbung.